Key Features
Individual, detached country house
Magnificent views
Greenbelt setting. Standing in around an acre
Fabulous oak room. Spacious Lounge. Dining Room & Study
Attractive fitted kitchen with an island unit. Opens onto a lovely rear patio
Extensive outdoor areas, driveway and garage
Three bedrooms with fitted wardrobes. Family bathroom and en-suite
Gorgeous setting between Honley, Meltham and Netherthong
View our 360° Virtual Reality Viewer and Video Tour on Belong's own website
No Onward Chain
Summary
Honey Head is a truly delightful country house that stands in around 1 acre. Commanding gorgeous views, this rural retreat is definitely one to consider. Not far from both Honley and Holmfirth.
Details
A beautiful and picturesque setting, Wood Nook is a rural hamlet above Honley on the way to Meltham, surrounded by local countryside and boasting some of the best views in the Holmfirth area.
Perfect for those who enjoy the outdoors, this fine detached house comes complete with extensive outdoor space and gardens, a shingle driveway and a large garage too.
Suited to a variety of buyers the property will appeal to those looking for something very individual, one can imagine children playing in the grounds which are perfect for a game of hide and seek, or just whiling away a few hours gardening and taking in the scenery.
The area is cross-crossed with local footpaths and rural roads as indicated in our images, making it perfect for people who enjoy walking. There’s even a local riding school for equestrian enthusiasts at the bottom of the lane.
Honley village is just down the road, with Netherthong and Meltham just around the corner. There are places to eat out and socialise, villages with varied amenities and also schooling for children of all ages.
Business travellers will welcome the road links around the area which is around 25 miles from Leeds, Manchester and Sheffield.
The property stands in approximately an acre, made up of gardens with year-round colour, wildflower meadows and a functioning vegetable garden with a greenhouse.
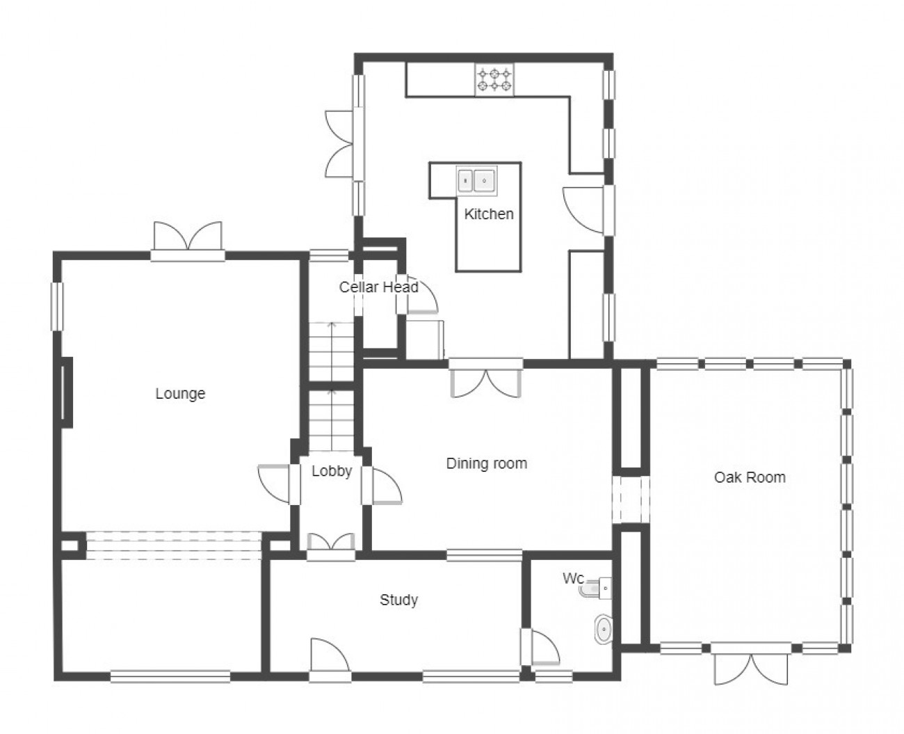
Offering very spacious living space. The house has a large lounge complete with a wood burning stove, and additional front seating area. There is a generous dining room, and an attractive modern kitchen which has an island unit and granite worktops. In addition, there is a useful ground floor study and cloakroom/wc.
The real show-stopper of the ground floor is the oak room, which has a high ceiling, and French windows leading out onto the garden.
The first floor has a landing with bookshelves which leads to two very large double bedrooms, each having fitted wardrobes. The master bedroom has a spacious en-suite shower room. There is also a third bedroom which has fitted wardrobes to one wall, and a family bathroom/wc with a modern white suite.
Each of the bedrooms and bathrooms have beautiful views of the gardens and beyond.
Please take a look over our photographs, video and 3D tour to get an understanding of the layout and quality of this excellent, individual home.
Viewing is highly recommended to avoid disappointment.
The essentials: Our client is keen to sell this summer, this is a serious sale. The property is Freehold on three titles. Note the presence of the public footpath which is accessed through the property (map included in images). The property has LPG (liquid propane gas) for heating etc. The property has private drainage (not on mains sewer) . The property has mains water and electricity.
The house is not adapted for disabled access. Greenbelt location. Council Tax Band is F. Plot size measures .944 of an acre. There are a variety of mobile phone and broadband suppliers across the area.
Rooms & Measurements (approximate sizes for guidance)
Lounge: 25' x 14'6
Dining Room: 15' x 11'
Oak Room: 16'6 x 11'6
Kitchen: 17'6 x 14'6
Study: 15'6 x 6'10
Garage: 15'10 x 17'2
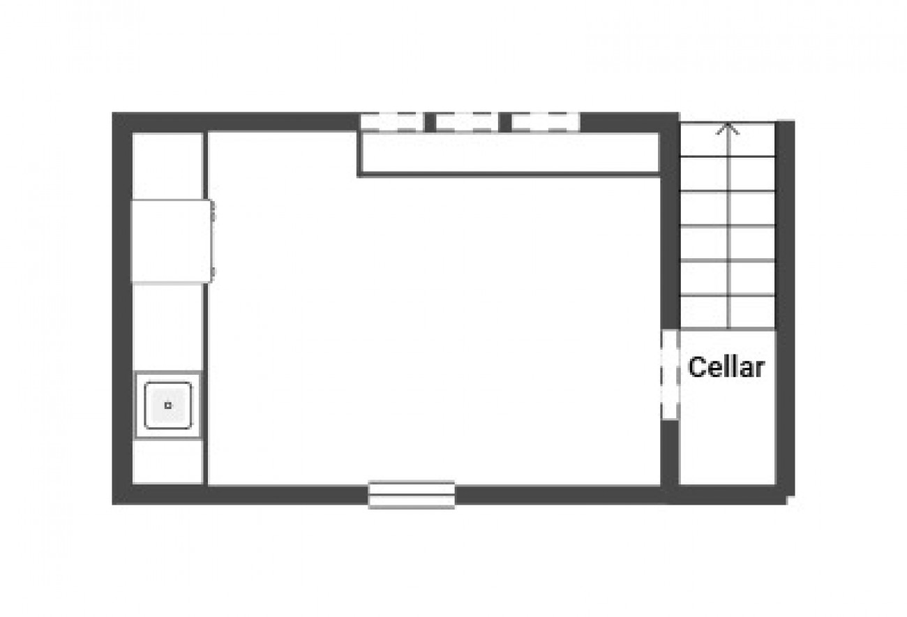
Claokroom/wc. 6'10 x 5'1 Cellar Head. Attached Rear Store.
Cellar: 15 x 9'6
Landing 11'2 x 8'3 max
Master Bedroom: 16'9 x 14'3
Shower En-Suite 8'4 x 7'10
Bedroom 2: 14'6 x 12'6 into wardobes
Bedroom 3: 9'6 x 8'5 into wardrobes.
Bathroom/wc. 8'2 x 6'9
Media Tours
Honey Head is a truly delightful country house that stands in around 1 acre. Commanding gorgeous views, this rural retreat is definitely one to consider. Not far from both Honley and Holmfirth.
A beautiful and picturesque setting, Wood Nook is a rural hamlet above Honley on the way to Meltham, surrounded by local countryside and boasting some of the best views in the Holmfirth area.
Perfect for those who enjoy the outdoors, this fine detached house comes complete with extensive outdoor space and gardens, a shingle driveway and a large garage too.
Suited to a variety of buyers the property will appeal to those looking for something very individual, one can imagine children playing in the grounds which are perfect for a game of hide and seek, or just whiling away a few hours gardening and taking in the scenery.
The area is cross-crossed with local footpaths and rural roads as indicated in our images, making it perfect for people who enjoy walking. There’s even a local riding school for equestrian enthusiasts at the bottom of the lane.
Honley village is just down the road, with Netherthong and Meltham just around the corner. There are places to eat out and socialise, villages with varied amenities and also schooling for children of all ages.
Business travellers will welcome the road links around the area which is around 25 miles from Leeds, Manchester and Sheffield.
The property stands in approximately an acre, made up of gardens with year-round colour, wildflower meadows and a functioning vegetable garden with a greenhouse.
Offering very spacious living space. The house has a large lounge complete with a wood burning stove, and additional front seating area. There is a generous dining room, and an attractive modern kitchen which has an island unit and granite worktops. In addition, there is a useful ground floor study and cloakroom/wc.
The real show-stopper of the ground floor is the oak room, which has a high ceiling, and French windows leading out onto the garden.
The first floor has a landing with bookshelves which leads to two very large double bedrooms, each having fitted wardrobes. The master bedroom has a spacious en-suite shower room. There is also a third bedroom which has fitted wardrobes to one wall, and a family bathroom/wc with a modern white suite.
Each of the bedrooms and bathrooms have beautiful views of the gardens and beyond.
Please take a look over our photographs, video and 3D tour to get an understanding of the layout and quality of this excellent, individual home.
Viewing is highly recommended to avoid disappointment.
The essentials: Our client is keen to sell this summer, this is a serious sale. The property is Freehold on three titles. Note the presence of the public footpath which is accessed through the property (map included in images). The property has LPG (liquid propane gas) for heating etc. The property has private drainage (not on mains sewer) . The property has mains water and electricity.
The house is not adapted for disabled access. Greenbelt location. Council Tax Band is F. Plot size measures .944 of an acre. There are a variety of mobile phone and broadband suppliers across the area.
Rooms & Measurements (approximate sizes for guidance)
Lounge: 25' x 14'6
Dining Room: 15' x 11'
Oak Room: 16'6 x 11'6
Kitchen: 17'6 x 14'6
Study: 15'6 x 6'10
Garage: 15'10 x 17'2
Claokroom/wc. 6'10 x 5'1 Cellar Head. Attached Rear Store.
Cellar: 15 x 9'6
Landing 11'2 x 8'3 max
Master Bedroom: 16'9 x 14'3
Shower En-Suite 8'4 x 7'10
Bedroom 2: 14'6 x 12'6 into wardobes
Bedroom 3: 9'6 x 8'5 into wardrobes.
Bathroom/wc. 8'2 x 6'9
Location
Floorplan & EPC's
Key Information<
-
Tenure: Freehold
-
Council Tax Band: F
-
Electricity: MainsSupply
-
Mains Water: MainsSupply
-
Sewerage: PrivateSupply
-
Heating: Gas, WoodBurner
-
Garage: Yes
-
Parking Spaces: 3
-
Garden: Yes
-
All Others: Ask Agent



