Key Features
Detached bungalow in a prime location
Fabulous views along the Holme Valley
Large landscaped lawned garden plot
Solar Panels
Double garage beneath
Huge living room with bi-fold doors out onto a balcony
4 bedrooms. En-suite shower room and family bathroom
Gas central heating system & double glazing
Sold subject to the grant of probate
View our 360° Virtual Reality Viewer and Video Tour on Belong's own website
Summary
Fling open the bi-fold doors and enjoy dinner, or just drinks on the wonderful terrace that looks over the Holme Valley. If you are in the market for a large detached bungalow with exceptional views and a particularly generous plot, then this interesting and individual property in the lovely semi rural setting of Upperthong, might be where you belong.
Details
If you are not impressed by the views on offer at High Croft, we will be very surprised.
In around one third of an acre, this individual detached bungalow represents an excellent opportunity for families, professionals and those seeking a substantial home in retirement.
Affording one of the best vantage points in the Holme Valley, the property commands lovely views, and stands in generous lawned gardens on the edge of local countryside.
With local scenic walks, a delightful local pub, sought after primary school and local cricket club, Upperthong is a sought after semi-rural setting just up the hill from Holmfirth.
Holmfirth has a wide variety of places to eat out and socialise, excellent local amenities, a wide range of shopping and public services too. A very popular town on the edge of the Pennines, sought after by many.
The property will appeal to those looking to establish a comfortable home for many years to come.
A timber framed, stone faced detached bungalow, it has a gas central heating system, double glazing, and a solar panel system too.
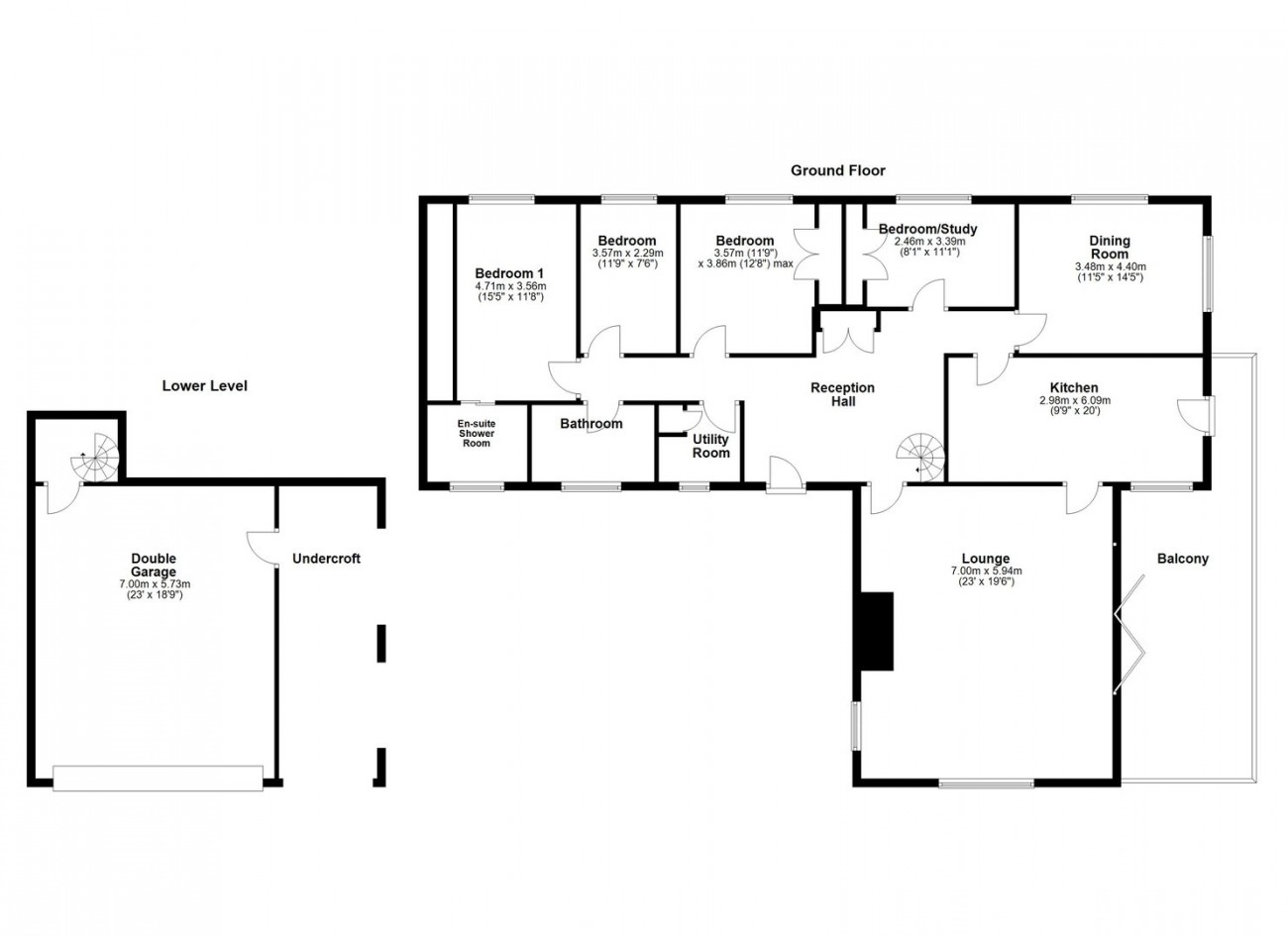
Enter into a large reception hall which has a spiral staircase descending to a lower level integral garage.
The reception hall connects into the exceptionally large lounge which boasts a glazed elevation with bi-fold doors leading out onto the balcony from which to enjoy the views. It is a real showstopper.
The living accommodation is further complemented by a separate dining room and a spacious modern fitted kitchen which has various appliances. There is also a useful laundry room.
There are four bedrooms (one used as a study more recently), a family bathroom and an en-suite shower room.
The gardens are as depicted in our photographs, video and title plan view.
Extensive lawned gardens extend to three elevations with a well stocked rockery and shrubbery garden to the front.
A driveway provides an excellent amount of off road parking in front of the double garage which has a remote control garage door. In addition, there is a useful under-croft beneath the balcony that provides sheltered storage.
In all, this is a lovely detached bungalow with spacious living accommodation, generous gardens and an excellent setting. Viewing is highly recommended.
The essentials: The property is Freehold. Mains services are available. The property is not adapted for disabled living. There are a variety of broadband and mobile phone providers in the area. Council Tax Band is G
Please note: This property is being sold subject to the grant of probate which has now been granted.
Media Tours
Fling open the bi-fold doors and enjoy dinner, or just drinks on the wonderful terrace that looks over the Holme Valley. If you are in the market for a large detached bungalow with exceptional views and a particularly generous plot, then this interesting and individual property in the lovely semi rural setting of Upperthong, might be where you belong.
If you are not impressed by the views on offer at High Croft, we will be very surprised.
In around one third of an acre, this individual detached bungalow represents an excellent opportunity for families, professionals and those seeking a substantial home in retirement.
Affording one of the best vantage points in the Holme Valley, the property commands lovely views, and stands in generous lawned gardens on the edge of local countryside.
With local scenic walks, a delightful local pub, sought after primary school and local cricket club, Upperthong is a sought after semi-rural setting just up the hill from Holmfirth.
Holmfirth has a wide variety of places to eat out and socialise, excellent local amenities, a wide range of shopping and public services too. A very popular town on the edge of the Pennines, sought after by many.
The property will appeal to those looking to establish a comfortable home for many years to come.
A timber framed, stone faced detached bungalow, it has a gas central heating system, double glazing, and a solar panel system too.
Enter into a large reception hall which has a spiral staircase descending to a lower level integral garage.
The reception hall connects into the exceptionally large lounge which boasts a glazed elevation with bi-fold doors leading out onto the balcony from which to enjoy the views. It is a real showstopper.
The living accommodation is further complemented by a separate dining room and a spacious modern fitted kitchen which has various appliances. There is also a useful laundry room.
There are four bedrooms (one used as a study more recently), a family bathroom and an en-suite shower room.
The gardens are as depicted in our photographs, video and title plan view.
Extensive lawned gardens extend to three elevations with a well stocked rockery and shrubbery garden to the front.
A driveway provides an excellent amount of off road parking in front of the double garage which has a remote control garage door. In addition, there is a useful under-croft beneath the balcony that provides sheltered storage.
In all, this is a lovely detached bungalow with spacious living accommodation, generous gardens and an excellent setting. Viewing is highly recommended.
The essentials: The property is Freehold. Mains services are available. The property is not adapted for disabled living. There are a variety of broadband and mobile phone providers in the area. Council Tax Band is G
Please note: This property is being sold subject to the grant of probate which has now been granted.
Location
Floorplan & EPC's
Key Information<
-
Tenure: Freehold
-
Council Tax Band: G
-
Electricity: MainsSupply
-
Mains Water: MainsSupply
-
Sewerage: MainsSupply
-
Heating: GasCentral
-
Garage: Yes
-
Parking Spaces: 4
-
Garden: Yes
-
All Others: Ask Agent



