Key Features
Four bedroom detached house
A lovely family home with potential
Gas central heating system, and double glazing
Offered with no onward chain and vacant possession
Popular residential area within Almondbury village
Lots of living space, with generous proportions
Established lawned gardens, driveway and integral garage
Excellent local amenities across the district
Well placed for business travellers
View our 360° Virtual Reality Viewer and Video Tour on Belong's own website
Summary
*** Winter Incentive Available *** Our clients will accept £345,000 for a sale agreed prior to January 31st 2026. In the ever popular village of Almondbury, which enjoys that all important "walk-to-school" lifestyle, and is centrally located for business travellers, this four bedroom detached house has come to the market for the first time since being built.
Details
*** Winter Incentive Available *** Our clients will accept £345,000 for a sale agreed prior to January 31st 2026.
It is often a good advert for a property when people don't move very often, and that is certainly the case with this property on Dartmouth Avenue. Having been occupied by our client's since the property was built, it is now time for a new family to make it their own.
Well placed for local village amenities, schooling and for commuters seeking a central location, the property is also offered with vacant possession and no onward chain.
The house has a gas central heating system and double glazing, and it is fair to say that it requires general modernisation.
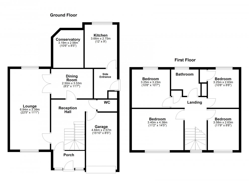
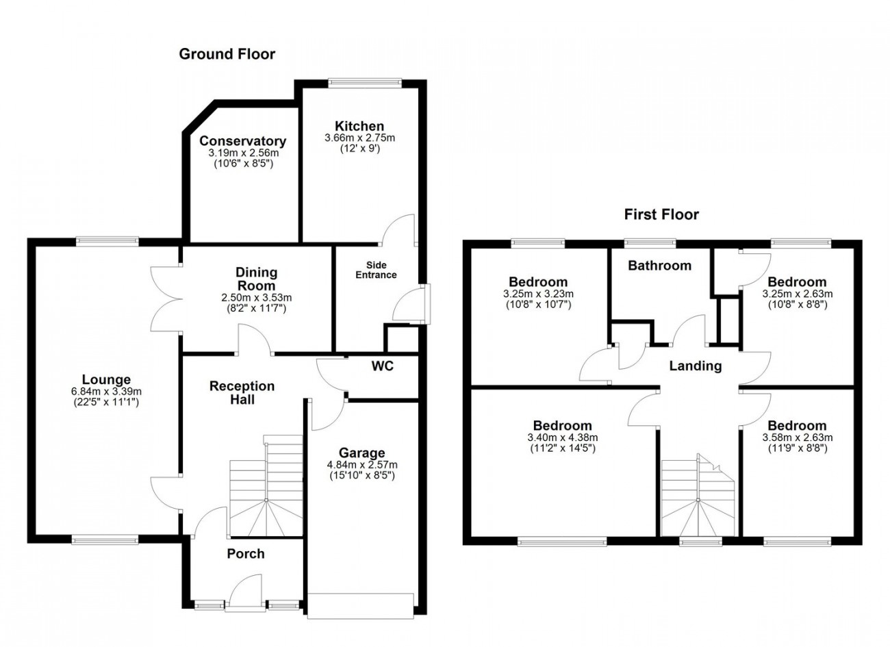
With four good sized bedrooms and ample living space as depicted in our floorplan, the property briefly comprises:-
Entrance Porch, Spacious and Welcoming Reception Hall, Generous Through Lounge with double aspect windows and a feature fireplace, Separate Dining Room, Conservatory overlooking the rear garden, Fitted Breakfast Kitchen, Side Entrance, Ground Floor WC, and an Integral Garage too.
On the first floor, an open landing connects the four well proportioned bedrooms, and there is a family bathroom also. There is a variety of built in and fitted clothes storage, and also views towards Emley Mast at the rear.
Externally, the property has established gardens to both elevations as you can see in our photos and video tour. The front garden is laid to lawn with borders, and at the rear is another lawned garden with patios areas for alfresco dining etc. Also a garden shed.
A lovely family home, in a highly convenient and popular residential setting just off Fenay Lane. One can wander up into the village centre where there are places to eat out and socialise. There are local parks and recreation grounds, shops, amenities and public services.
The more active amongst us can enjoy a round of golf at the local golf club, Woodsome Hall, or take a longer walk up to Castle Hill and around Farnley Tyas.
In all, this is an opportunity to create a comfortable family house in a sought after village, and viewing is highly recommended.
The essentials: The property is Freehold. Mains services are available. The property is not adapted for disabled living. There are a variety of mobile phone and broadband providers in the area. Council Tax Band is E. The house is being sold with vacant possession and no onward chain.
Media Tours
*** Winter Incentive Available *** Our clients will accept £345,000 for a sale agreed prior to January 31st 2026. In the ever popular village of Almondbury, which enjoys that all important "walk-to-school" lifestyle, and is centrally located for business travellers, this four bedroom detached house has come to the market for the first time since being built.
*** Winter Incentive Available *** Our clients will accept £345,000 for a sale agreed prior to January 31st 2026.
It is often a good advert for a property when people don't move very often, and that is certainly the case with this property on Dartmouth Avenue. Having been occupied by our client's since the property was built, it is now time for a new family to make it their own.
Well placed for local village amenities, schooling and for commuters seeking a central location, the property is also offered with vacant possession and no onward chain.
The house has a gas central heating system and double glazing, and it is fair to say that it requires general modernisation.
With four good sized bedrooms and ample living space as depicted in our floorplan, the property briefly comprises:-
Entrance Porch, Spacious and Welcoming Reception Hall, Generous Through Lounge with double aspect windows and a feature fireplace, Separate Dining Room, Conservatory overlooking the rear garden, Fitted Breakfast Kitchen, Side Entrance, Ground Floor WC, and an Integral Garage too.
On the first floor, an open landing connects the four well proportioned bedrooms, and there is a family bathroom also. There is a variety of built in and fitted clothes storage, and also views towards Emley Mast at the rear.
Externally, the property has established gardens to both elevations as you can see in our photos and video tour. The front garden is laid to lawn with borders, and at the rear is another lawned garden with patios areas for alfresco dining etc. Also a garden shed.
A lovely family home, in a highly convenient and popular residential setting just off Fenay Lane. One can wander up into the village centre where there are places to eat out and socialise. There are local parks and recreation grounds, shops, amenities and public services.
The more active amongst us can enjoy a round of golf at the local golf club, Woodsome Hall, or take a longer walk up to Castle Hill and around Farnley Tyas.
In all, this is an opportunity to create a comfortable family house in a sought after village, and viewing is highly recommended.
The essentials: The property is Freehold. Mains services are available. The property is not adapted for disabled living. There are a variety of mobile phone and broadband providers in the area. Council Tax Band is E. The house is being sold with vacant possession and no onward chain.
Location
Floorplan & EPC's
Key Information<
-
Tenure: Freehold
-
Council Tax Band: E
-
Electricity: MainsSupply
-
Mains Water: MainsSupply
-
Sewerage: MainsSupply
-
Heating: GasCentral
-
Garage: Yes
-
Parking Spaces: 2
-
Garden: Yes
-
All Others: Ask Agent



