Key Features
A wonderful grade II listed character property
In a small hamlet setting of only 3
Paddock to the front of the house
Courtyard to the rear of the house with various outbuildings
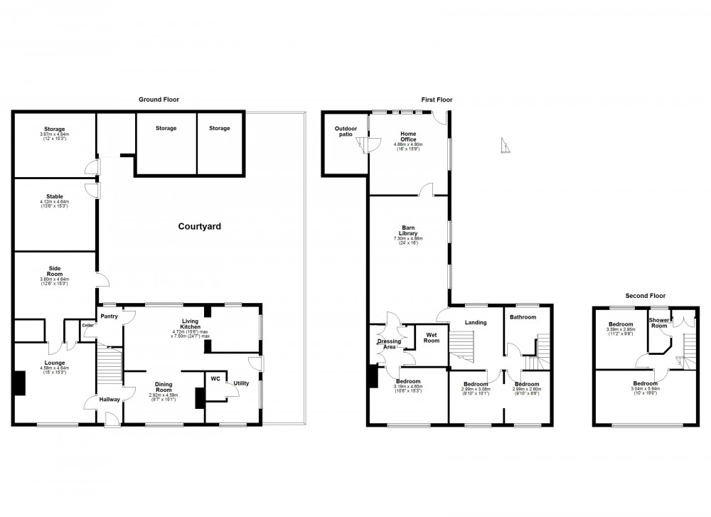
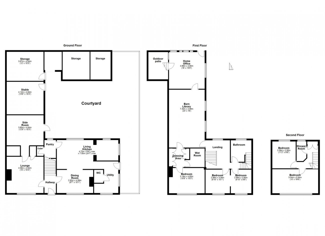
Extensive accommodation over 3 levels, plus a cellar
Packed full of character features such as beams, mullions and fireplace
Wondrous first floor barn library with home office beyond
Just out of Honley village in a beautiful rural setting
Let your imagination go wild with this unique property
View our 360° Virtual Reality Viewer and Video Tour on Belong's own website
Summary
If you are in the market for a wonderful olde-worlde house with outbuildings and a paddock & gardens of around 0.5 of an acre, then Sunnywood House might be where you belong. Rural, but only just out of Honley village.
Details
It's hard to describe the accommodation and outbuildings on offer at Sunnywood House. There is simply so much to take in and the possibilities are numerous for those with the imagination to make this beautiful grade II listed house their home.
Our clients have enjoyed the combination of the space, character and outdoor lifestyle afforded by this unique property, however, it is now time for another family to call it their own.
Full of character features, the property displays beams and roof trusses, exposed stone work, mullions and fireplaces, all in keeping with what one would expect from a house of this era.
The outdoors are a delight, and at the same time will get your imagination running wild with what you could achieve with the combination of the outbuildings, rear courtyard and paddock. There are useful store rooms, a place for a ride on mower, and former stables.
The land at the front of the property totals around 0.5 of an acre and is a combination of a greenbelt paddock with garden areas at the side with mature plantings. Perfect for young families to play outdoors, and perhaps suited to someone who would like a pony or some other livestock. For our clients it's simply been joyous to own a little piece of the countryside.
We could list the accommodation on offer, but we think you'll appreciate it more by perusing our floorplan, taking our video tour and looking over our 3D tour in these particulars.
Some of the highlights include the lovely lounge with feature Inglenook fireplace, the expansive living kitchen and dining room, the self-contained main bedroom and barn library with home office wing (which could be a place to have a relative living independently as our clients have in the past), and the top floor bedrooms from which to enjoy the outlook across the local fields.
The kitchen has an attractive range of modern fitted units with granite effect worktops, integrated cooking appliances and a dishwasher. This room flows into the neighbouring sitting room which has additional cabinets and informal dining by way of a breakfast bar, and in turn this flows into the beautiful formal dining room which has a lovely fireplace. There is an adjoining useful side boot room/utility and ground floor w.c.
The property has keeps some secrets too. A cellar located off the pantry for instance, and what we have called a side room which is located behind the lounge and opens onto the rear courtyard.
We are sure you'll be very excited about the barn library on the first floor - it could be a games room, entertaining space or work from home space, especially as it has a home office area beyond. Off the home office is a small rear courtyard backing onto the local fields.
There really is so much to explore, this delightful character property is well worthy of a personal viewing.
Viewings are by appointment with our Honley office.
Honley is a delightful semi rural village whose star is constantly rising. A genuine community that pulls together, and has year-round events and activities. There are a variety of independent shops and businesses, a local library, community centre and places of worship.
The range of bars and restaurants is extensive and there are also sports and social clubs too. In addition there are excellent village amenities, including a doctors surgery, dentist, pharmacy, butchers, bakers and even a candlestick maker.
Those who enjoy the outdoors will appreciate the connectivity to the local countryside and the wider Holme Valley.
Well placed for business travellers, Honley is around 24 miles from Leeds, Manchester and Sheffield, and the village also has a railway station connecting to Sheffield and Huddersfield. Holmfirth is only a few minutes drive by car.
There are schools for children of all ages, as well as a variety of nursery services etc. There really is something for everyone in Honley.
The essentials: The property has private drainage (own tank). Greenhouse to be removed. Mains gas, water and electricity area available. The house has a "quick line fibre" internet connection. The property is located off an unadopted bridleway between Meltham Road and Hassocks Lane - please drive carefully and slowly. There are three properties in the hamlet, therefore rights of way exist. The property is not adapted for disabled access. EPC not legally required as the property is Listed. Council Tax Band is E. The property is Grade II listed and is in the greenbelt.
Media Tours
If you are in the market for a wonderful olde-worlde house with outbuildings and a paddock & gardens of around 0.5 of an acre, then Sunnywood House might be where you belong. Rural, but only just out of Honley village.
It's hard to describe the accommodation and outbuildings on offer at Sunnywood House. There is simply so much to take in and the possibilities are numerous for those with the imagination to make this beautiful grade II listed house their home.
Our clients have enjoyed the combination of the space, character and outdoor lifestyle afforded by this unique property, however, it is now time for another family to call it their own.
Full of character features, the property displays beams and roof trusses, exposed stone work, mullions and fireplaces, all in keeping with what one would expect from a house of this era.
The outdoors are a delight, and at the same time will get your imagination running wild with what you could achieve with the combination of the outbuildings, rear courtyard and paddock. There are useful store rooms, a place for a ride on mower, and former stables.
The land at the front of the property totals around 0.5 of an acre and is a combination of a greenbelt paddock with garden areas at the side with mature plantings. Perfect for young families to play outdoors, and perhaps suited to someone who would like a pony or some other livestock. For our clients it's simply been joyous to own a little piece of the countryside.
We could list the accommodation on offer, but we think you'll appreciate it more by perusing our floorplan, taking our video tour and looking over our 3D tour in these particulars.
Some of the highlights include the lovely lounge with feature Inglenook fireplace, the expansive living kitchen and dining room, the self-contained main bedroom and barn library with home office wing (which could be a place to have a relative living independently as our clients have in the past), and the top floor bedrooms from which to enjoy the outlook across the local fields.
The kitchen has an attractive range of modern fitted units with granite effect worktops, integrated cooking appliances and a dishwasher. This room flows into the neighbouring sitting room which has additional cabinets and informal dining by way of a breakfast bar, and in turn this flows into the beautiful formal dining room which has a lovely fireplace. There is an adjoining useful side boot room/utility and ground floor w.c.
The property has keeps some secrets too. A cellar located off the pantry for instance, and what we have called a side room which is located behind the lounge and opens onto the rear courtyard.
We are sure you'll be very excited about the barn library on the first floor - it could be a games room, entertaining space or work from home space, especially as it has a home office area beyond. Off the home office is a small rear courtyard backing onto the local fields.
There really is so much to explore, this delightful character property is well worthy of a personal viewing.
Viewings are by appointment with our Honley office.
Honley is a delightful semi rural village whose star is constantly rising. A genuine community that pulls together, and has year-round events and activities. There are a variety of independent shops and businesses, a local library, community centre and places of worship.
The range of bars and restaurants is extensive and there are also sports and social clubs too. In addition there are excellent village amenities, including a doctors surgery, dentist, pharmacy, butchers, bakers and even a candlestick maker.
Those who enjoy the outdoors will appreciate the connectivity to the local countryside and the wider Holme Valley.
Well placed for business travellers, Honley is around 24 miles from Leeds, Manchester and Sheffield, and the village also has a railway station connecting to Sheffield and Huddersfield. Holmfirth is only a few minutes drive by car.
There are schools for children of all ages, as well as a variety of nursery services etc. There really is something for everyone in Honley.
The essentials: The property has private drainage (own tank). Greenhouse to be removed. Mains gas, water and electricity area available. The house has a "quick line fibre" internet connection. The property is located off an unadopted bridleway between Meltham Road and Hassocks Lane - please drive carefully and slowly. There are three properties in the hamlet, therefore rights of way exist. The property is not adapted for disabled access. EPC not legally required as the property is Listed. Council Tax Band is E. The property is Grade II listed and is in the greenbelt.



