Key Features
3 Bedroom semi detached cottage
In a little known hamlet between Shelley and Thunderbridge
Plenty of outdoor space with parking and gardens
A real project - an opportunity that doesn't come along every day
Two reception rooms, fitted kitchen, cloakroom, GF w.c. and Conservatory
Oil fired boiler. Shared septic tank
Can only be appreciated properly at a personal viewing
Offered with vacant possession and no onward chain
View our 360° Virtual Reality Viewer and Video Tour on Belong's own website
Summary
In a little known and rarely available hamlet, just out of Thunderbridge, an interesting three bedroom cottage for renovation.
Details
Offered with vacant possession and no onward chain, this olde-world cottage offers something rather different.
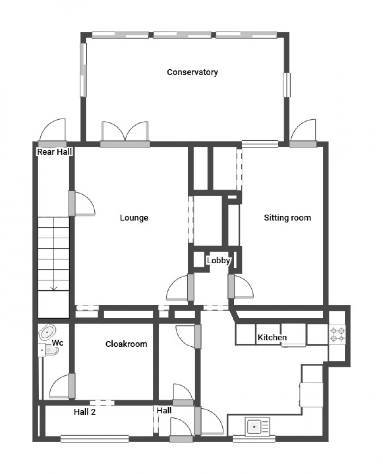
In need of renovation, but with lots of potential, one can best understand the layout by viewing our 3D tour, video and floorplan.
The property is being sold with a generous amount of outdoor space.
At the rear of the house is an enclosed cottage garden and pond. There is an additional side area where the oil tank is located and in addition there is a beautiful secret garden across the way, accessed through a wooden garden gate.
Also, our client is including a further outdoor area which would make an ideal parking area with potential to erect additional garaging etc.
The property itself briefly comprises:
Entrance Hall, Inner Cloakroom and Ground Floor WC. Modern fitted kitchen with appliances and an oil fired boiler. Spacious Lounge, Rear Conservatory, and Separate Dining Room.
A rear hall leads to the stairs which provide access to the first floor where one will find three bedrooms and a bathroom.
A small olde-worlde cellar lives under the kitchen.
Cote Close is a small select hamlet that many will have driven past and not realised it was there. Made up of some older cottages and some fantastic modern dwellings, it’s a haven for local wildlife.
Walk to the local pub, take local scenic walks, or access the extensive local road networks to get to Holmfirth, Huddersfield, Penistone and the M1 motorway. The nearest villages are Shelley, Shepley and Kirkburton, where one will find schooling for children of all ages, amenities, shops, public services and there’s even a railway link in Shepley and Stocksmoor that connect to Huddersfield and Sheffield.
In all this is an interesting house, in a rarely available setting. One which is sure to attract a lot of curious interest.
The essentials: The property has mains water and electricity connected. Oil for heating and hot water. Shared septic tank for drainage. The property is Freehold. Our clients have highlighted the land which they are including in the sale - image included in these particulars. The house is not suited to disabled living requirements. There are a variety of mobile phone and broadband providers covering the area. Council Tac band is D. EPC to follow.
Media Tours
In a little known and rarely available hamlet, just out of Thunderbridge, an interesting three bedroom cottage for renovation.
Offered with vacant possession and no onward chain, this olde-world cottage offers something rather different.
In need of renovation, but with lots of potential, one can best understand the layout by viewing our 3D tour, video and floorplan.
The property is being sold with a generous amount of outdoor space.
At the rear of the house is an enclosed cottage garden and pond. There is an additional side area where the oil tank is located and in addition there is a beautiful secret garden across the way, accessed through a wooden garden gate.
Also, our client is including a further outdoor area which would make an ideal parking area with potential to erect additional garaging etc.
The property itself briefly comprises:
Entrance Hall, Inner Cloakroom and Ground Floor WC. Modern fitted kitchen with appliances and an oil fired boiler. Spacious Lounge, Rear Conservatory, and Separate Dining Room.
A rear hall leads to the stairs which provide access to the first floor where one will find three bedrooms and a bathroom.
A small olde-worlde cellar lives under the kitchen.
Cote Close is a small select hamlet that many will have driven past and not realised it was there. Made up of some older cottages and some fantastic modern dwellings, it’s a haven for local wildlife.
Walk to the local pub, take local scenic walks, or access the extensive local road networks to get to Holmfirth, Huddersfield, Penistone and the M1 motorway. The nearest villages are Shelley, Shepley and Kirkburton, where one will find schooling for children of all ages, amenities, shops, public services and there’s even a railway link in Shepley and Stocksmoor that connect to Huddersfield and Sheffield.
In all this is an interesting house, in a rarely available setting. One which is sure to attract a lot of curious interest.
The essentials: The property has mains water and electricity connected. Oil for heating and hot water. Shared septic tank for drainage. The property is Freehold. Our clients have highlighted the land which they are including in the sale - image included in these particulars. The house is not suited to disabled living requirements. There are a variety of mobile phone and broadband providers covering the area. Council Tac band is D. EPC to follow.
Location
Floorplan & EPC's
Key Information<
-
Tenure: Freehold
-
Council Tax Band: D
-
Electricity: MainsSupply
-
Mains Water: MainsSupply
-
Sewerage: PrivateSupply
-
Heating: Oil
-
Parking Spaces: 3
-
Garden: Yes
-
All Others: Ask Agent



