Key Features
Lovely three bedroom mid terraced house
Useful additional loft with two velux windows, and storage
Attractive modern bathroom with shower over the bath
Spacious dining kitchen with wood burning stove
Useful entrance porch/boot room/utility
Gas central heating system and double glazing
On hand for local country walks and scenery
Excellent local village with varied amenities
Views to Castle Hill and local countryside
View our 360° Virtual Reality Viewer and Video Tour on Belong's own website
Summary
On the edge of Honley, close to local country walks and scenery, is this three bedroom period mid terraced house. It has a useful loft area too.
Details
If you are in the market for a three bedroom house in Honley, which has the local countryside on the doorstep, then this mid through terraced house at Sycamore Terrace might be just where you belong.
Having three bedrooms on the first floor, one of which has a ladder stair to a useful additional loft space, the property offers comfortable accommodation of which a personal viewing is recommended.
It has a gas central heating system and double glazing, and briefly comprises:
Arriving at the property to what is the rear elevation, the house has a good sized entrance porch/boot room which our clients dual purpose as a utility. From here one enters a welcoming dining kitchen, the focal point of which is the wood burning stove. There are a range of painted fitted kitchen cabinets, together with built in cooking appliances, and there is ample space for dining.
From the kitchen one can access a cosy lounge which looks onto the garden, and also a rear entrance hallway. There is also a useful pantry beneath the stairs for additional storage.
Upstairs, the landing connects to the three bedrooms, and a stylish bathroom which has a three piece white suite and a shower over the bath. There are views to both elevations. On one side you can look over towards Castle Hill and on the other are local fields. Bedroom 2 has built in alcove storage cupboards.
The loft has two velux windows - our photos show the views from these. It's useful additional space with some built-in storage and exposed roof timbers.
There is a small enclosed garden to what is the formal front of the house, with established plantings, and to the other elevation our clients sit out on sunny evenings, as depicted in our images.
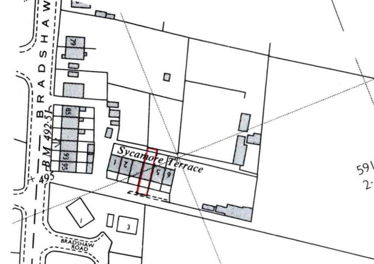
Where to park? The property is set along a shared unadopted lane which provides access and a right of way to the residents, who park along here. Note our title plan for boundaries and ownership.
Honley is a lovely village within the Holme Valley. It has a wide variety of amenities, local shops and businesses, places to eat out and socialise, and schooling for children of all ages. Around the village there are some beautiful local walks and scenery too.
Business travellers appreciate Honley's central location, as it is approximately 24 miles from Leeds, Manchester and Sheffield. There is even a local railway station connecting to Huddersfield and Sheffield. The village really does have something for everyone.
The essentials: Mains services are connected, the property is Freehold. The house is not adapted for disabled living. There are a variety of broadband and mobile phone providers covering the area. Parking is on road. Council Tax Band is B. The property owns to the mid point of the lane as depicted on the title plan.
Media Tours
On the edge of Honley, close to local country walks and scenery, is this three bedroom period mid terraced house. It has a useful loft area too.
If you are in the market for a three bedroom house in Honley, which has the local countryside on the doorstep, then this mid through terraced house at Sycamore Terrace might be just where you belong.
Having three bedrooms on the first floor, one of which has a ladder stair to a useful additional loft space, the property offers comfortable accommodation of which a personal viewing is recommended.
It has a gas central heating system and double glazing, and briefly comprises:
Arriving at the property to what is the rear elevation, the house has a good sized entrance porch/boot room which our clients dual purpose as a utility. From here one enters a welcoming dining kitchen, the focal point of which is the wood burning stove. There are a range of painted fitted kitchen cabinets, together with built in cooking appliances, and there is ample space for dining.
From the kitchen one can access a cosy lounge which looks onto the garden, and also a rear entrance hallway. There is also a useful pantry beneath the stairs for additional storage.
Upstairs, the landing connects to the three bedrooms, and a stylish bathroom which has a three piece white suite and a shower over the bath. There are views to both elevations. On one side you can look over towards Castle Hill and on the other are local fields. Bedroom 2 has built in alcove storage cupboards.
The loft has two velux windows - our photos show the views from these. It's useful additional space with some built-in storage and exposed roof timbers.
There is a small enclosed garden to what is the formal front of the house, with established plantings, and to the other elevation our clients sit out on sunny evenings, as depicted in our images.
Where to park? The property is set along a shared unadopted lane which provides access and a right of way to the residents, who park along here. Note our title plan for boundaries and ownership.
Honley is a lovely village within the Holme Valley. It has a wide variety of amenities, local shops and businesses, places to eat out and socialise, and schooling for children of all ages. Around the village there are some beautiful local walks and scenery too.
Business travellers appreciate Honley's central location, as it is approximately 24 miles from Leeds, Manchester and Sheffield. There is even a local railway station connecting to Huddersfield and Sheffield. The village really does have something for everyone.
The essentials: Mains services are connected, the property is Freehold. The house is not adapted for disabled living. There are a variety of broadband and mobile phone providers covering the area. Parking is on road. Council Tax Band is B. The property owns to the mid point of the lane as depicted on the title plan.
Location
Floorplan & EPC's
Key Information<
-
Tenure: Freehold
-
Council Tax Band: B
-
Electricity: MainsSupply
-
Mains Water: MainsSupply
-
Sewerage: MainsSupply
-
Heating: GasCentral
-
Garden: Yes
-
All Others: Ask Agent



