Key Features
Beautiful character cottage
Grade II listed
In lovely Netherthong
4 bedrooms. 3 on the 1st Floor, and another on the lower level with en-suite w.c.
Excellent boot room/porch with ground floor w.c.
Lovely dining kitchen with underfloor heating and stone flooring
Comfortable lounge with wood burning stove
Lots of character features
2 car garage and a gated driveway
Recently replaced timber framed double glazed windows
Summary
In the lovely Holme Valley village of Netherthong which is not far from Holmfirth and on the edge of local countryside, we are pleased to bring the market this 4 bedroom grade II listed cottage.
Details
A truly delightful and comfortable home of character.
Located close to the beautiful local church, village store and within walking distance of a much sought after primary school, this beautiful grade II listed house will appeal to both families and professionals.
Externally, the property has a parking area to the left hand side, stone paved patio areas for outdoor seating and dining, and a garage too. Selling features which are sometimes hard to come by with properties of this and style.
Business travellers will welcome the road networks across the district which connect to Lancashire, Derbyshire and Yorkshire, and in the village of Brockholes one will find a local railway station that connects to both Sheffield and Huddersfield.
The property itself, which was photographed prior to the current occupants moving in is a blend of olde-worlde character and charm, with modern comforts and style.
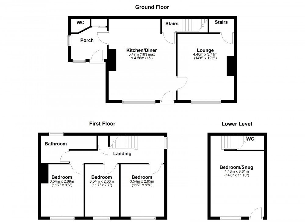
Enter into a useful boot room/porch which has a ground floor w.c. and storage, and then wander through into the spacious dining kitchen which has a stone flagged floor with underfloor heating. There is a comfortable lounge completed with a beautiful fireplace and wood burning stove.
The lower ground floor plays host to a guest bedroom with w.c., which can be used as a primary bedroom or home office/snug if preferred.
On the first floor there is a landing with space for a small workstation/study area, and in turn access to three attractive bedrooms and a delightful house bathroom.
Throughout the property one will notice mullion windows, exposed beams and stonework, which enhance the cosy and character nature of the property.
Outside, the property has a gated stone set driveway at the side of the house, which in turn leads to a paved area at the front of the house. Set below this area is a lower level paved area and the garage too. The garage is suited to two small cars, or one plus storage.
There is a gas central heating system and timber framed sealed unit double glazing.
In all, this is a beautiful home of character, in a most sought after semi-rural village, and viewing is highly recommended.
The essentials: The property is Freehold on two titles as depicted in our images. Mains services are available. The property is currently tenanted and therefore all viewings are by appointment with our Honley office. The house is not adapted for disabled living. Council Tax is D. The property is Grade II listed and in a conservation area.
In the lovely Holme Valley village of Netherthong which is not far from Holmfirth and on the edge of local countryside, we are pleased to bring the market this 4 bedroom grade II listed cottage.
A truly delightful and comfortable home of character.
Located close to the beautiful local church, village store and within walking distance of a much sought after primary school, this beautiful grade II listed house will appeal to both families and professionals.
Externally, the property has a parking area to the left hand side, stone paved patio areas for outdoor seating and dining, and a garage too. Selling features which are sometimes hard to come by with properties of this and style.
Business travellers will welcome the road networks across the district which connect to Lancashire, Derbyshire and Yorkshire, and in the village of Brockholes one will find a local railway station that connects to both Sheffield and Huddersfield.
The property itself, which was photographed prior to the current occupants moving in is a blend of olde-worlde character and charm, with modern comforts and style.
Enter into a useful boot room/porch which has a ground floor w.c. and storage, and then wander through into the spacious dining kitchen which has a stone flagged floor with underfloor heating. There is a comfortable lounge completed with a beautiful fireplace and wood burning stove.
The lower ground floor plays host to a guest bedroom with w.c., which can be used as a primary bedroom or home office/snug if preferred.
On the first floor there is a landing with space for a small workstation/study area, and in turn access to three attractive bedrooms and a delightful house bathroom.
Throughout the property one will notice mullion windows, exposed beams and stonework, which enhance the cosy and character nature of the property.
Outside, the property has a gated stone set driveway at the side of the house, which in turn leads to a paved area at the front of the house. Set below this area is a lower level paved area and the garage too. The garage is suited to two small cars, or one plus storage.
There is a gas central heating system and timber framed sealed unit double glazing.
In all, this is a beautiful home of character, in a most sought after semi-rural village, and viewing is highly recommended.
The essentials: The property is Freehold on two titles as depicted in our images. Mains services are available. The property is currently tenanted and therefore all viewings are by appointment with our Honley office. The house is not adapted for disabled living. Council Tax is D. The property is Grade II listed and in a conservation area.
Location
Floorplan & EPC's
Key Information<
-
Tenure: Freehold
-
Council Tax Band: D
-
Electricity: MainsSupply
-
Mains Water: MainsSupply
-
Sewerage: MainsSupply
-
Heating: DoubleGlazing, GasCentral
-
Parking Spaces: 2
-
Garden: Yes
-
All Others: Ask Agent



