Key Features
Furnished and available now
End Terraced cottage with accommodation over 3 levels
Spacious lounge
Kitchen with range cooker
Two double bedrooms and study / dressing area
House bathroom with 4 piece suite
Patio to the side
Within walking distance of Holmfirth town centre
Holding fee £195
Summary
Beautiful furnished cottage available to let and situated within walking distance of Holmfirth town centre.
Details
This furnished end terraced cottage would suit a professional couple or young family and us situated on the outskirts of Holmfirth within walking distance of the centre.
The accommodation is situated over 3 levels and comprises kitchen with range style cooker, utility area and good sized lounge with sofa.
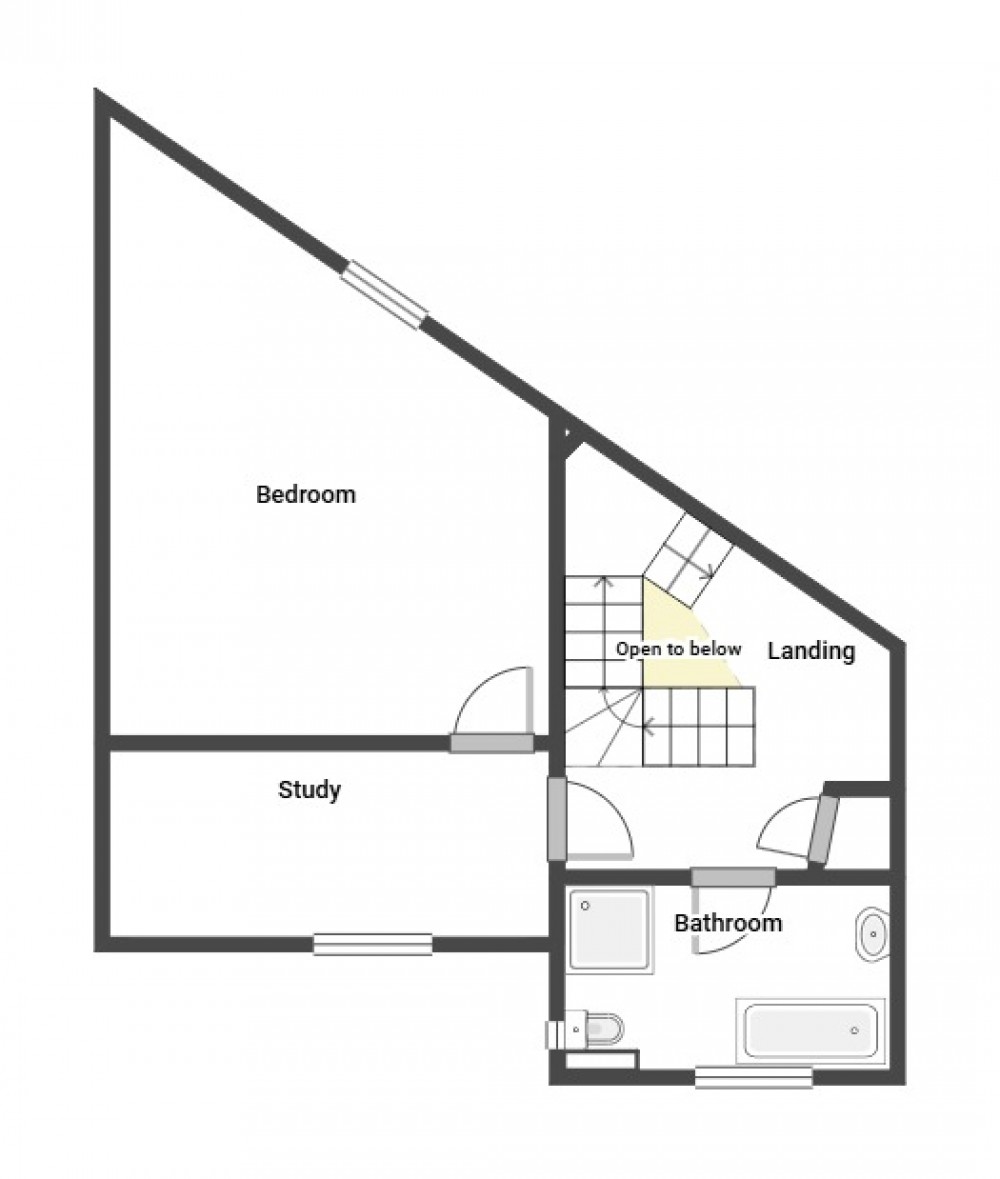
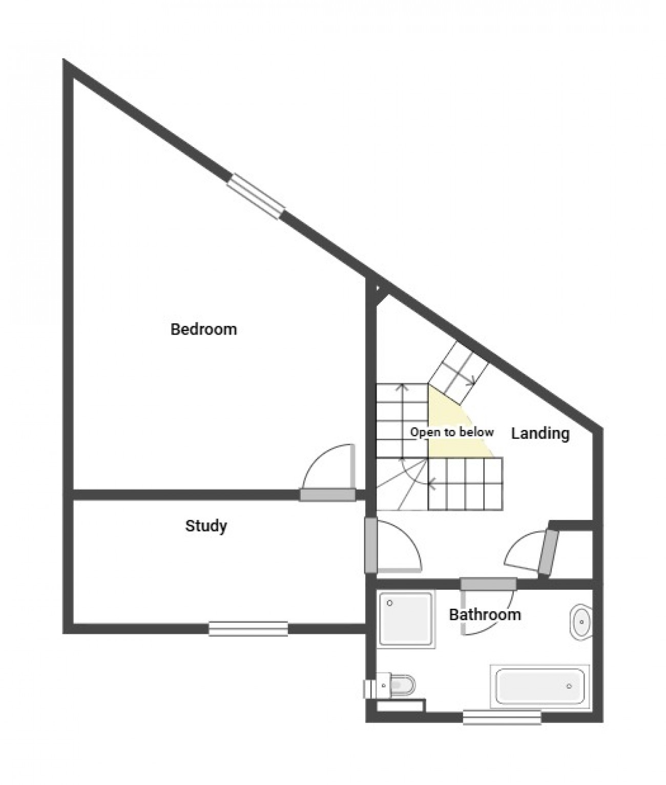
To the first floor is a good sized double bedrooms (with double beds and bedroom furniture), there is a study are / dressing area which you walk through to get to the bedroom and 4 piece house bathroom.
To the second floor is a landing area and further double bedroom with double bed and bedroom furniture.
Outside, the property has a small patio area to the side with garden table and chairs.
All applicants will be required to pay a Holding Fee equivalent to one weeks rent prior to the referencing being undertaken should the landlord decide to proceed with their application. Once acceptable references are obtained, the Holding Fee will be used for part payment of the first month’s rent. The Holding Fee for this property is £195.
All tenancies are subject to our rigorous application process which includes, credit, employment and previous landlord checks, and by applying for a property an applicant gives us permission to make these inquiries. Prospective tenants are advised to declare all relevant matters as part of their initial application as any falsehoods that come to light later in the process will result in the rental application being aborted and the Holding Fee being retained.
A bond of £980 plus the first month's rent is payable in advance.
The council tax band is A. No pets or smokers.
Measurements:
Lounge - 23'2" x 13'2"
Kitchen - 12'1" x 10'11"
Study - 13'1" x 5'5"
Bedroom to first floor - 13'1" x 17'6" narrows to 11'1"
Bedroom to second floor - 12'11" x 18'10" narrows to 10'9".
Beautiful furnished cottage available to let and situated within walking distance of Holmfirth town centre.
This furnished end terraced cottage would suit a professional couple or young family and us situated on the outskirts of Holmfirth within walking distance of the centre.
The accommodation is situated over 3 levels and comprises kitchen with range style cooker, utility area and good sized lounge with sofa.
To the first floor is a good sized double bedrooms (with double beds and bedroom furniture), there is a study are / dressing area which you walk through to get to the bedroom and 4 piece house bathroom.
To the second floor is a landing area and further double bedroom with double bed and bedroom furniture.
Outside, the property has a small patio area to the side with garden table and chairs.
All applicants will be required to pay a Holding Fee equivalent to one weeks rent prior to the referencing being undertaken should the landlord decide to proceed with their application. Once acceptable references are obtained, the Holding Fee will be used for part payment of the first month’s rent. The Holding Fee for this property is £195.
All tenancies are subject to our rigorous application process which includes, credit, employment and previous landlord checks, and by applying for a property an applicant gives us permission to make these inquiries. Prospective tenants are advised to declare all relevant matters as part of their initial application as any falsehoods that come to light later in the process will result in the rental application being aborted and the Holding Fee being retained.
A bond of £980 plus the first month's rent is payable in advance.
The council tax band is A. No pets or smokers.
Measurements:
Lounge - 23'2" x 13'2"
Kitchen - 12'1" x 10'11"
Study - 13'1" x 5'5"
Bedroom to first floor - 13'1" x 17'6" narrows to 11'1"
Bedroom to second floor - 12'11" x 18'10" narrows to 10'9".
Location
Floorplan & EPC's
Key Information<
-
Council Tax Band: A
-
Electricity: MainsSupply
-
Mains Water: MainsSupply
-
Sewerage: MainsSupply
-
Heating: Gas
-
Garden: Yes
-
All Others: Ask Agent



