Key Features
Beautiful character cottage
Well placed for local scenic walks and countryside
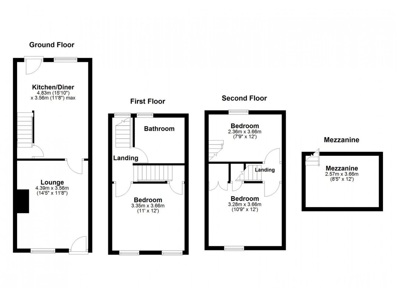
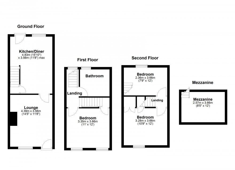
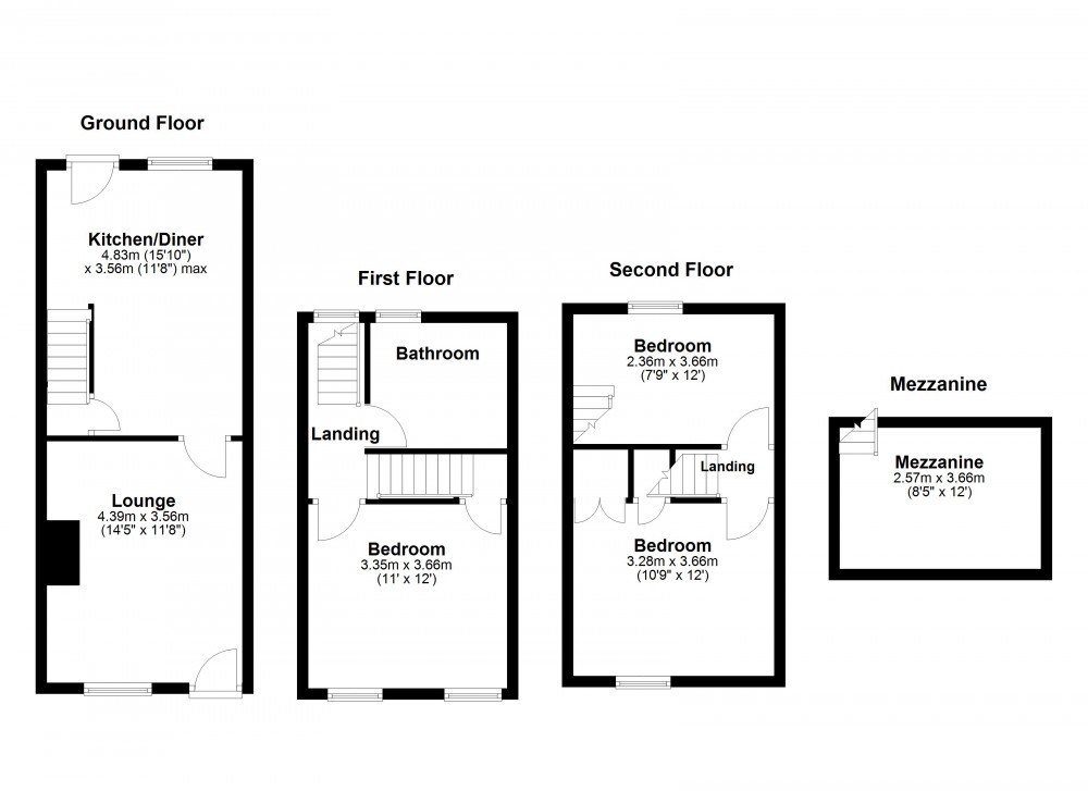
Three bedrooms, one with a mezzanine
Stylish modern bathroom with separate shower
Lovely modern fitted dining kitchen
Gas central heating system
Sealed unit double glazing
Enclosed lawned garden to the front
Terraced rear garden suited to alfresco dining and play
View our 360° Virtual Reality Viewer and Video Tour on Belong's own website
Summary
A beautiful three bedroom + mezzanine mid through terraced cottage, situated just down from New Mill Parish Church, and backing onto a local park with views beyond.
Details
Some properties just put their arms around you on chilly winter evenings. A wood burning stove, beams, exposed stonework and plenty of character and warmth is on offer at this gorgeous cottage in New Mill, Holmfirth.
Boasting a contemporary styled dining kitchen and a beautiful bathroom complete with a separate shower, this property offers comfortable character living, with modern fittings. Our clients have modernised the property and enhanced its character, and we are sure you'll agree that it's a lovely home.
The house has an enclosed lawned front garden with a pathway leading to the front entrance door.
At the rear is a garden suited to alfresco dining and relaxing. With generous paved areas, and a lower level artificial lawn with raised planters, the rear garden is simple to keep, and enjoys an outlook over and access to the playing field at the back.
The cottage briefly comprises:
Entrance into a beautiful lounge, complete with an Inglenook fireplace and wood burning stove, beams and a window seat too.
Wander into the dining kitchen which is fitted with a range of attractive modern kitchen cabinets providing ample storage. There are attractive worktops, an inset belfast style sink, and both integrated dishwasher and washing machine. (Cooker by negotiation).
The dining kitchen has a stable door leading out to the rear patio, and there is useful under-stair storage.
On the first floor is the delightful and spacious primary bedroom, and the impressive family bathroom which has a lovely four piece white bathroom suite including a bath and separate shower, complemented by well chosen tiling.
On the second floor are two genuine cottage bedrooms, with window seats, timber doors, and the front bedroom has built in storage. The rear bedroom has a ladder to a useful mezzanine over, as depicted in our images.
New Mill is a village not far from Holmfirth in the Holme Valley. It has a beautiful local church, a few local amenities, schooling for children of all ages in neighbouring villages, and some attractive local walks and scenery. Popular with local buyers, and those from further afield, it is well placed for business travellers.
In all this is a most charming character property which offers comfortable and stylish accommodation, and an early viewing is highly recommended.
The essentials: Mains services are available. The property is not a listed building. There are a variety of mobile phone and broadband suppliers in the area. There are neighbourly rights of way at the rear which is common with terraced cottages. Parking is on road. Council Tax Band is B. The property is Freehold.
Viewings are by appointment with our Honley office.
Media Tours
A beautiful three bedroom + mezzanine mid through terraced cottage, situated just down from New Mill Parish Church, and backing onto a local park with views beyond.
Some properties just put their arms around you on chilly winter evenings. A wood burning stove, beams, exposed stonework and plenty of character and warmth is on offer at this gorgeous cottage in New Mill, Holmfirth.
Boasting a contemporary styled dining kitchen and a beautiful bathroom complete with a separate shower, this property offers comfortable character living, with modern fittings. Our clients have modernised the property and enhanced its character, and we are sure you'll agree that it's a lovely home.
The house has an enclosed lawned front garden with a pathway leading to the front entrance door.
At the rear is a garden suited to alfresco dining and relaxing. With generous paved areas, and a lower level artificial lawn with raised planters, the rear garden is simple to keep, and enjoys an outlook over and access to the playing field at the back.
The cottage briefly comprises:
Entrance into a beautiful lounge, complete with an Inglenook fireplace and wood burning stove, beams and a window seat too.
Wander into the dining kitchen which is fitted with a range of attractive modern kitchen cabinets providing ample storage. There are attractive worktops, an inset belfast style sink, and both integrated dishwasher and washing machine. (Cooker by negotiation).
The dining kitchen has a stable door leading out to the rear patio, and there is useful under-stair storage.
On the first floor is the delightful and spacious primary bedroom, and the impressive family bathroom which has a lovely four piece white bathroom suite including a bath and separate shower, complemented by well chosen tiling.
On the second floor are two genuine cottage bedrooms, with window seats, timber doors, and the front bedroom has built in storage. The rear bedroom has a ladder to a useful mezzanine over, as depicted in our images.
New Mill is a village not far from Holmfirth in the Holme Valley. It has a beautiful local church, a few local amenities, schooling for children of all ages in neighbouring villages, and some attractive local walks and scenery. Popular with local buyers, and those from further afield, it is well placed for business travellers.
In all this is a most charming character property which offers comfortable and stylish accommodation, and an early viewing is highly recommended.
The essentials: Mains services are available. The property is not a listed building. There are a variety of mobile phone and broadband suppliers in the area. There are neighbourly rights of way at the rear which is common with terraced cottages. Parking is on road. Council Tax Band is B. The property is Freehold.
Viewings are by appointment with our Honley office.
Location
Floorplan & EPC's
Key Information<
-
Tenure: Freehold
-
Council Tax Band: B
-
Electricity: MainsSupply
-
Mains Water: MainsSupply
-
Sewerage: MainsSupply
-
Heating: GasCentral
-
Garden: Yes
-
All Others: Ask Agent



