Key Features
Fabulous 4 bedroom barn conversion
Stylish, modern, comfortable
Excellent locale - suited to families and professionals
Fabulous open plan living kitchen with wood burning stove
Beautiful fitted kitchen with quartz island and integrated appliances
Lounge/Snug and a lovely office
Welcoming entrance, boot room/utility and an integral garage
Stylishly appointed en-suite, family bathroom and ground floor w.c.
Well placed for local scenic walks and countryside
View our 360° Virtual Reality Viewer and Video Tour on Belong's own website
Summary
A genuine showstopper. This beautiful four bedroom barn conversion is located along the prestigious Manor Road in Farnley Tyas.
Details
It is rare that Grade II listed barn conversions come to the market in such fine condition.
With four bedrooms, this impressive character home boasts charm, character and elegance. Suited to families and professionals, the property is located in a corner setting with views down Manor Road, and from the main bedroom onto local fields.
Offering easy to move into accommodation, one can imagine just bringing one's furniture and settling right in to this lovely home and community.
If you enjoy scenic country walks punctuated with a fireside drink and something to eat at a local pub, then Farnley Tyas is for you. Once a farming hamlet, now a thriving community of exceptional homes. There are local places to ride out, shoot, enjoy a round of golf at Woodsome Hall Golf Club, enjoy a game of bowls, places to eat out and socialise, and a beautiful local church too.
Business travellers will welcome the excellent road links, and there are local railway stations in neighbouring Honley and Stocksmoor which connect to Huddersfield and Sheffield. Holmfirth is not too far away either.
Families with young children will most definitely want to check out the local primary school, it's also a major reason as to why Farnley Tyas is so popular.
The property itself was renovated and essentially rebuilt as part of an exclusive development, yet retains all of the character expected of high quality barn conversions. The front of the house plays host to the large barn window and the original date stone. An attractive double width driveway is laid with sets, and leads to a good sized single garage.
The garden is ideal for those who lead busy lives. Enough for a game of football with little ones, for those who enjoy gardening, and for sitting out and enjoying a spot of alfresco dining. It has two lawns and two seating areas, the rear patio enjoying privacy in a small courtyard setting.
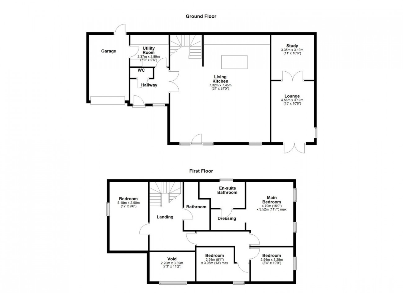
Enter the house into a welcoming hallway, which connects to the cloakroom/wc, boot room/utility, and the expansive living dining kitchen.
The main area offers a wonderful combination of spaces for relaxation, formal and informal dining, food preparation and entertaining. There's even a wood burning stove and vaulted double height ceiling, as well as turned staircase rising to the first floor galleried landing.
The kitchen is well appointed and stylish with a range of lovely cabinets and integrated appliances to include a Quooker hot tap, twin ovens, hob and cooker hood, fridge, freezer and dishwasher. Sit a while at the large quartz surfaced island and enjoy the view across the living room, it is rather special.
For some quiet space, there is a delightful snug, and a lovely home office too.
The ground floor is heated with underfloor heating fired by the gas boiler and has beautiful Indian stone paving throughout.
The first floor is beautiful. It has a spacious main bedroom with dressing room and en-suite. There are three further bedrooms for the children, and a delightful family bathroom too.
The bathroom and en-suite fittings feature egg baths, walk-in showers and particularly well chosen tiling. They have underfloor heating too, whereas the remainder of the first floor enjoys traditional gas central heating.
As you wander around the first floor you won't miss the array of exposed beams and roof timbers, and we are sure you'll take a glance from the galleried landing to the living room below.
In all this is an excellent barn conversion in a beautiful part of Yorkshire, with local country walks and scenery on the doorstep. Viewing is highly recommended.
The essentials: The property is Grade II listed and in a conservation area. Mains services are available. The house is not adapted for disabled living. Broadband is Stix - Mobile is wi-fi calling. Council Tax Band is F. The cul-de-sac is privately maintained - refer to title plan for ownership.
Viewing is strictly by appointment with our Honley office.
Media Tours
A genuine showstopper. This beautiful four bedroom barn conversion is located along the prestigious Manor Road in Farnley Tyas.
It is rare that Grade II listed barn conversions come to the market in such fine condition.
With four bedrooms, this impressive character home boasts charm, character and elegance. Suited to families and professionals, the property is located in a corner setting with views down Manor Road, and from the main bedroom onto local fields.
Offering easy to move into accommodation, one can imagine just bringing one's furniture and settling right in to this lovely home and community.
If you enjoy scenic country walks punctuated with a fireside drink and something to eat at a local pub, then Farnley Tyas is for you. Once a farming hamlet, now a thriving community of exceptional homes. There are local places to ride out, shoot, enjoy a round of golf at Woodsome Hall Golf Club, enjoy a game of bowls, places to eat out and socialise, and a beautiful local church too.
Business travellers will welcome the excellent road links, and there are local railway stations in neighbouring Honley and Stocksmoor which connect to Huddersfield and Sheffield. Holmfirth is not too far away either.
Families with young children will most definitely want to check out the local primary school, it's also a major reason as to why Farnley Tyas is so popular.
The property itself was renovated and essentially rebuilt as part of an exclusive development, yet retains all of the character expected of high quality barn conversions. The front of the house plays host to the large barn window and the original date stone. An attractive double width driveway is laid with sets, and leads to a good sized single garage.
The garden is ideal for those who lead busy lives. Enough for a game of football with little ones, for those who enjoy gardening, and for sitting out and enjoying a spot of alfresco dining. It has two lawns and two seating areas, the rear patio enjoying privacy in a small courtyard setting.
Enter the house into a welcoming hallway, which connects to the cloakroom/wc, boot room/utility, and the expansive living dining kitchen.
The main area offers a wonderful combination of spaces for relaxation, formal and informal dining, food preparation and entertaining. There's even a wood burning stove and vaulted double height ceiling, as well as turned staircase rising to the first floor galleried landing.
The kitchen is well appointed and stylish with a range of lovely cabinets and integrated appliances to include a Quooker hot tap, twin ovens, hob and cooker hood, fridge, freezer and dishwasher. Sit a while at the large quartz surfaced island and enjoy the view across the living room, it is rather special.
For some quiet space, there is a delightful snug, and a lovely home office too.
The ground floor is heated with underfloor heating fired by the gas boiler and has beautiful Indian stone paving throughout.
The first floor is beautiful. It has a spacious main bedroom with dressing room and en-suite. There are three further bedrooms for the children, and a delightful family bathroom too.
The bathroom and en-suite fittings feature egg baths, walk-in showers and particularly well chosen tiling. They have underfloor heating too, whereas the remainder of the first floor enjoys traditional gas central heating.
As you wander around the first floor you won't miss the array of exposed beams and roof timbers, and we are sure you'll take a glance from the galleried landing to the living room below.
In all this is an excellent barn conversion in a beautiful part of Yorkshire, with local country walks and scenery on the doorstep. Viewing is highly recommended.
The essentials: The property is Grade II listed and in a conservation area. Mains services are available. The house is not adapted for disabled living. Broadband is Stix - Mobile is wi-fi calling. Council Tax Band is F. The cul-de-sac is privately maintained - refer to title plan for ownership.
Viewing is strictly by appointment with our Honley office.
Location
Floorplan & EPC's
Key Information<
-
Tenure: Freehold
-
Council Tax Band: F
-
Electricity: MainsSupply
-
Mains Water: MainsSupply
-
Sewerage: MainsSupply
-
Heating: Gas
-
Garage: Yes
-
Parking Spaces: 2
-
Garden: Yes
-
All Others: Ask Agent



