Key Features
Wow, simply wow. You will be impressed with what is on offer.
An outstanding, stylish, contemporary and comfortable home
Personal viewing is imperative to avoid disappointment
4/5 bedroom executive mews
Perfect for families and professionals
Stylish family bathroom, 2 x en-suites, and ground floor w.c.
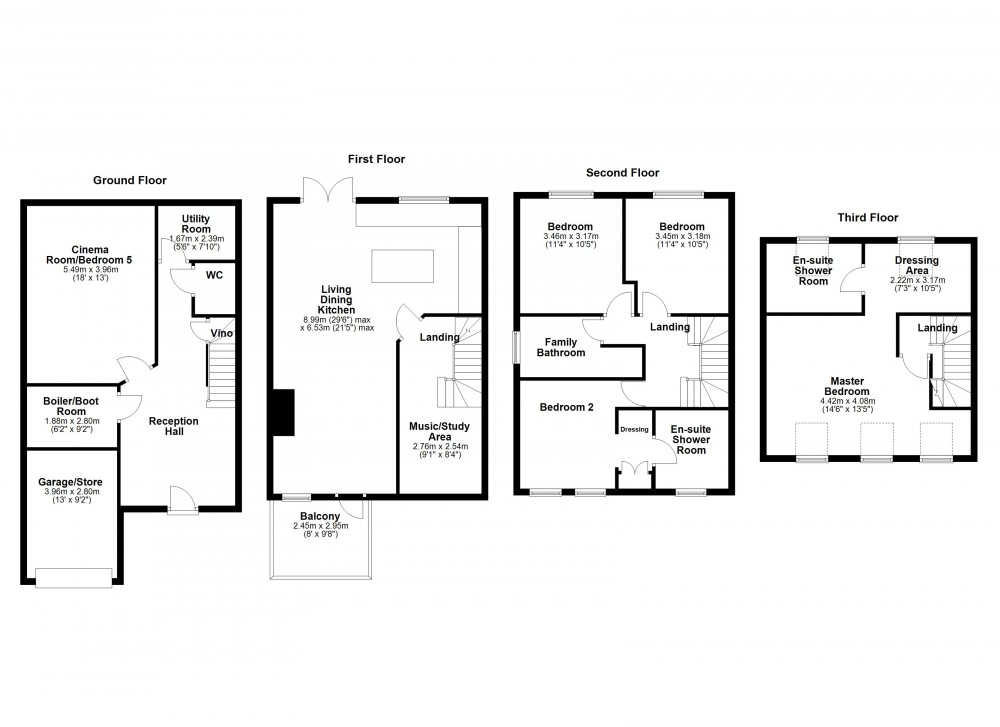
Check out the wine cellar under the stairs - we call it "Vino"
Gas central heating, double glazing, and home sprinkler system
Well placed for local scenic walks, schooling and railway station
View our 360° Virtual Reality Viewer and Video Tour on Belong's own website
Summary
An outstanding executive mews, offering all of the style and quality of a much more expensive luxury detached, however without the price tag.
Details
Walk along the River Holme where local wildlife roams, or perhaps take a stroll to the lovely Devour and enjoy fine dining.
This fabulous house will impress you the moment you walk through the front door. It's a home with contemporary character.
Families will appreciate the walk-to-school lifestyle on offer, as there are schools for children of all ages in the immediate area. Professionals will appreciate the road links which connect Holmfirth to Lancashire and the Yorkshire counties. There’s even a local railway station connecting to Huddersfield and Sheffield. Holmfirth is a few minutes by car and a good walk for those who are more active.
The property itself is one of the most impressive homes of its type that we have ever had the pleasure of marketing. Stylish and practical, with both family spaces and private spaces to suit everyone.
There are four formal bedrooms, two served by beautiful en-suites and with an excellent family bathroom too.
In addition, there is a spacious room on the ground floor which our clients use as a home cinema, but would lend itself to a fifth bedroom as it already has built in storage as depicted in our images. One could even imagine a self-contained arrangement on the ground floor.
For us, the showstopper is the “Vino”, as we’ve called it on our floorplan. An exquisite wine cellar beneath the stairs….its lockable too, for peace of mind.
The living kitchen on the first floor is an excellent space. Large and welcoming, ideal for entertaining and daily family life. It opens onto the balcony (a little sun trap) at the front, and onto the garden and patio at the rear, a perfect arrangement for alfresco dining.
The lounge is a delight, with a beautiful stone fireplace and inset gas fired stove, spacious yet cosy.
The kitchen is stylish and has an island unit with quartz worktops, and the usual quality array of matching Neff integrated appliances. Excellent for those who are foodies amongst us, there is ample food preparation space, and easy access to the kitchen amenities.
Note the first floor landing which our clients use for piano practice…it could be a study area, and indeed it could be partitioned if required..
Throughout the house one will find stylish detailing, excellent fitted storage and beautiful fittings…. Definitely something to admire on a personal viewing.
The garage is for usual family storage of bikes and DIY materials etc, it's not a full size garage as it has been divided, but we rarely garage cars these days. There is a useful boiler/boot room, and a separate utility room/laundry and a cloaks/w.c. On the ground floor.
The reception hall is simply perfect, it has underfloor heating and is a fabulous "welcome home" area to greet one’s guests, we are sure you will be impressed.
In all, this is a welcoming and stylish home, which is superbly appointed and located in a desirable residential setting within the Holme Valley.
Viewing is essential to avoid disappointment.
The essentials: Mains services are available. The property is Freehold. Not adapted for wheelchair users. Council Tax Band is E. There are a variety of broadband and mobile phone providers in the area. Our clients pay a small annual contribution towards the electric gates to the rear cul-de-sac as per the deeds (Approx. £25 presently).
Media Tours
An outstanding executive mews, offering all of the style and quality of a much more expensive luxury detached, however without the price tag.
Walk along the River Holme where local wildlife roams, or perhaps take a stroll to the lovely Devour and enjoy fine dining.
This fabulous house will impress you the moment you walk through the front door. It's a home with contemporary character.
Families will appreciate the walk-to-school lifestyle on offer, as there are schools for children of all ages in the immediate area. Professionals will appreciate the road links which connect Holmfirth to Lancashire and the Yorkshire counties. There’s even a local railway station connecting to Huddersfield and Sheffield. Holmfirth is a few minutes by car and a good walk for those who are more active.
The property itself is one of the most impressive homes of its type that we have ever had the pleasure of marketing. Stylish and practical, with both family spaces and private spaces to suit everyone.
There are four formal bedrooms, two served by beautiful en-suites and with an excellent family bathroom too.
In addition, there is a spacious room on the ground floor which our clients use as a home cinema, but would lend itself to a fifth bedroom as it already has built in storage as depicted in our images. One could even imagine a self-contained arrangement on the ground floor.
For us, the showstopper is the “Vino”, as we’ve called it on our floorplan. An exquisite wine cellar beneath the stairs….its lockable too, for peace of mind.
The living kitchen on the first floor is an excellent space. Large and welcoming, ideal for entertaining and daily family life. It opens onto the balcony (a little sun trap) at the front, and onto the garden and patio at the rear, a perfect arrangement for alfresco dining.
The lounge is a delight, with a beautiful stone fireplace and inset gas fired stove, spacious yet cosy.
The kitchen is stylish and has an island unit with quartz worktops, and the usual quality array of matching Neff integrated appliances. Excellent for those who are foodies amongst us, there is ample food preparation space, and easy access to the kitchen amenities.
Note the first floor landing which our clients use for piano practice…it could be a study area, and indeed it could be partitioned if required..
Throughout the house one will find stylish detailing, excellent fitted storage and beautiful fittings…. Definitely something to admire on a personal viewing.
The garage is for usual family storage of bikes and DIY materials etc, it's not a full size garage as it has been divided, but we rarely garage cars these days. There is a useful boiler/boot room, and a separate utility room/laundry and a cloaks/w.c. On the ground floor.
The reception hall is simply perfect, it has underfloor heating and is a fabulous "welcome home" area to greet one’s guests, we are sure you will be impressed.
In all, this is a welcoming and stylish home, which is superbly appointed and located in a desirable residential setting within the Holme Valley.
Viewing is essential to avoid disappointment.
The essentials: Mains services are available. The property is Freehold. Not adapted for wheelchair users. Council Tax Band is E. There are a variety of broadband and mobile phone providers in the area. Our clients pay a small annual contribution towards the electric gates to the rear cul-de-sac as per the deeds (Approx. £25 presently).
Location
Floorplan & EPC's
Key Information<
-
Tenure: Freehold
-
Council Tax Band: E
-
Electricity: MainsSupply
-
Mains Water: MainsSupply
-
Sewerage: MainsSupply
-
Heating: GasCentral
-
Garage: Yes
-
Parking Spaces: 2
-
Garden: Yes
-
All Others: Ask Agent



