Key Features
Delightful three bedroom mews cottage
Popular Holme Valley village location
Local country walks and scenery
Well placed for business travellers
Feature exposed timbers
Spacious lounge, attractive dining kitchen, and dining room/bedroom 4
Main bedroom with en-suite shower room
Useful utility off the kitchen. Family bathroom with white suite
Parking for 2 cars and a cottage garden
View our 360° Virtual Reality Viewer and Video Tour on Belong's own website
Summary
If it's a house in Holmfirth packed with comfort and character that you are seeking, then this three storey mews cottage might be just where you belong.
Details
Of interest to a variety of buyers, this three bedroom mews cottage offers plenty.
With the accommodation laid out on three floors, the property is lovely property is situated in the ever popular Holmfirth village of Netherthong. Known for its surrounding local countryside, Netherthong has some lovely local walks and scenery, a beautiful local church, a village store and places to eat out and socialise.
Not far from Holmfirth where one has access to a wider range of amenities and supermarkets etc, Netherthong also has a much sought after primary school. Business travellers appreciate the road links which connect to Meltham, Holmfirth, Honley, Huddersfield and the wider region including North East Manchester.
It's an excellent location for those who enjoy the outdoors, and there is even a golf course at the end of the road too.
The property has a gas central heating system and double glazing, and is offered for sale with no onward vendor chain.
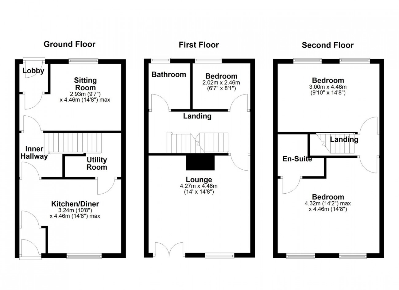
Ground Floor: A vestibule offers somewhere to kick your shoes off. There is an attractive dining kitchen and a useful utility room. The kitchen includes a gas hob, electric oven, cooker hood and dishwasher. Wander through the inner lobby into the dining room, which in turn has another vestibule/entrance providing access to the other elevation. The dining room has been used as a fourth bedroom in the past.
First Floor: A spacious and delightful lounge has a fitted gas fired stove, a feature beam and French windows looking out over the garden towards the neighbouring countryside and stables. There is a small third bedroom which our client uses as an office, and also a house bathroom which has a white bathroom suite and well chosen tiling.
Second Floor: You'll be impressed by the exposed timbers and roof trusses on display. The main bedroom has ample space and an en-suite shower room as depicted in our images. The second bedroom is another double bedroom and if you glance upwards you will note the useful mezzanine storage on offer. There are lovely views to the rear towards local countryside.
Externally, for daily use the property is approached from the rear of Moor Lane. There is designated parking for two cars and a delightful cottage garden with flower and shrub beds. There is another small area to the Moor Lane side of the property, and an additional samll area on approach suitable for a garden storage container.
In all, this is a good sized, well presented and homely property of character, in a much sought after village, and a personal viewing is highly recommended.
The essentials: The property is Freehold. Situated along a shared private driveway. Mains services are available. The house is not adapted for disabled living. Council Tax Band is D. There are a variety of mobile phone and broadband suppliers across Holmfirth. The house is in a conservation area. There are also two shared visitor parking spaces.
Viewing is accompanied via our Honley office.
Media Tours
If it's a house in Holmfirth packed with comfort and character that you are seeking, then this three storey mews cottage might be just where you belong.
Of interest to a variety of buyers, this three bedroom mews cottage offers plenty.
With the accommodation laid out on three floors, the property is lovely property is situated in the ever popular Holmfirth village of Netherthong. Known for its surrounding local countryside, Netherthong has some lovely local walks and scenery, a beautiful local church, a village store and places to eat out and socialise.
Not far from Holmfirth where one has access to a wider range of amenities and supermarkets etc, Netherthong also has a much sought after primary school. Business travellers appreciate the road links which connect to Meltham, Holmfirth, Honley, Huddersfield and the wider region including North East Manchester.
It's an excellent location for those who enjoy the outdoors, and there is even a golf course at the end of the road too.
The property has a gas central heating system and double glazing, and is offered for sale with no onward vendor chain.
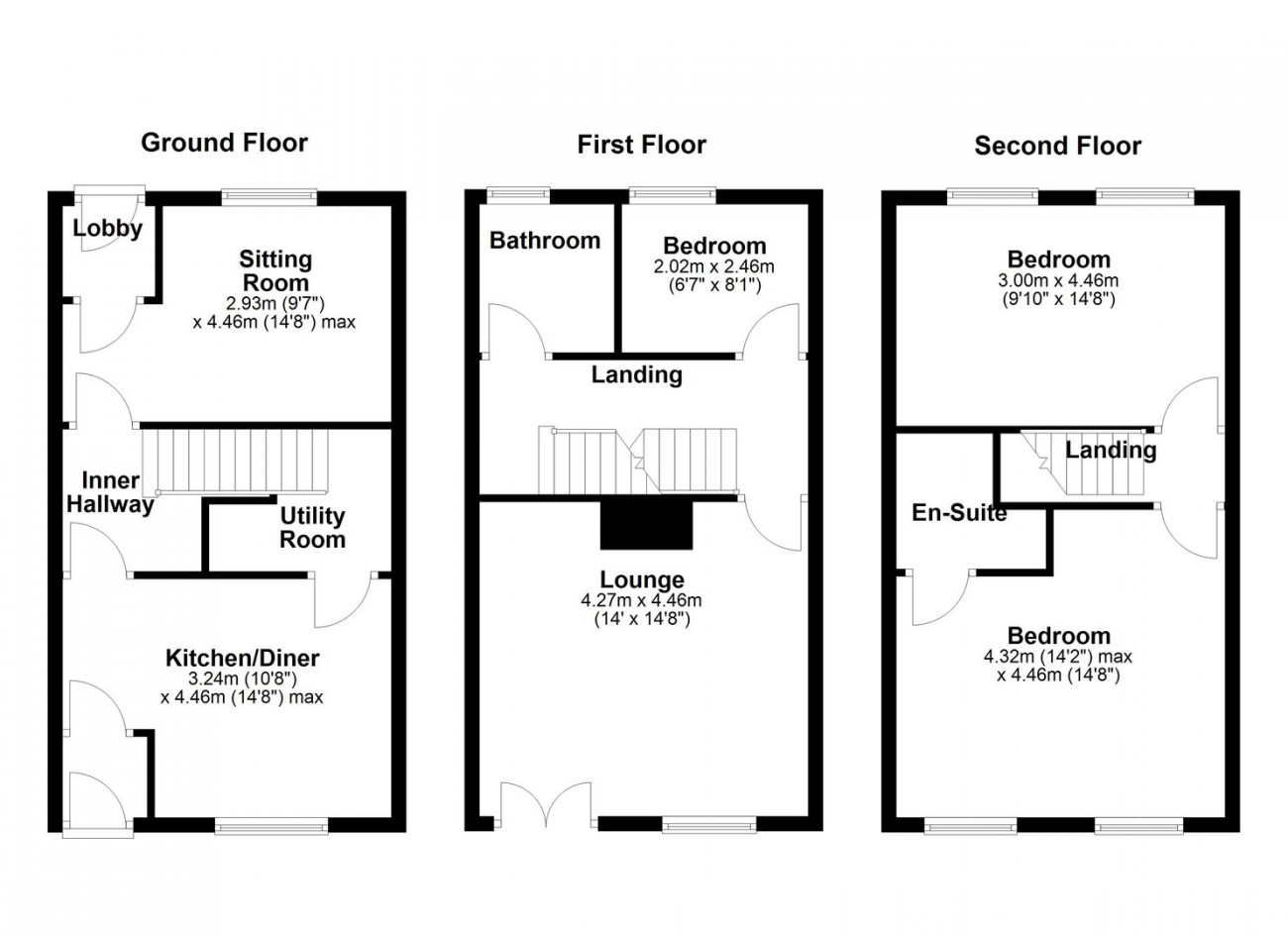
Ground Floor: A vestibule offers somewhere to kick your shoes off. There is an attractive dining kitchen and a useful utility room. The kitchen includes a gas hob, electric oven, cooker hood and dishwasher. Wander through the inner lobby into the dining room, which in turn has another vestibule/entrance providing access to the other elevation. The dining room has been used as a fourth bedroom in the past.
First Floor: A spacious and delightful lounge has a fitted gas fired stove, a feature beam and French windows looking out over the garden towards the neighbouring countryside and stables. There is a small third bedroom which our client uses as an office, and also a house bathroom which has a white bathroom suite and well chosen tiling.
Second Floor: You'll be impressed by the exposed timbers and roof trusses on display. The main bedroom has ample space and an en-suite shower room as depicted in our images. The second bedroom is another double bedroom and if you glance upwards you will note the useful mezzanine storage on offer. There are lovely views to the rear towards local countryside.
Externally, for daily use the property is approached from the rear of Moor Lane. There is designated parking for two cars and a delightful cottage garden with flower and shrub beds. There is another small area to the Moor Lane side of the property, and an additional samll area on approach suitable for a garden storage container.
In all, this is a good sized, well presented and homely property of character, in a much sought after village, and a personal viewing is highly recommended.
The essentials: The property is Freehold. Situated along a shared private driveway. Mains services are available. The house is not adapted for disabled living. Council Tax Band is D. There are a variety of mobile phone and broadband suppliers across Holmfirth. The house is in a conservation area. There are also two shared visitor parking spaces.
Viewing is accompanied via our Honley office.
Location
Floorplan & EPC's
Key Information<
-
Tenure: Freehold
-
Council Tax Band: D
-
Electricity: MainsSupply
-
Mains Water: MainsSupply
-
Sewerage: MainsSupply
-
Heating: GasCentral
-
Parking Spaces: 2
-
Garden: Yes
-
All Others: Ask Agent



