Key Features
Development opportunity on the prestigious Hall Ing Lane
In approximately 0.4 of an acre
PP to extend to form a spacious detached bunalow
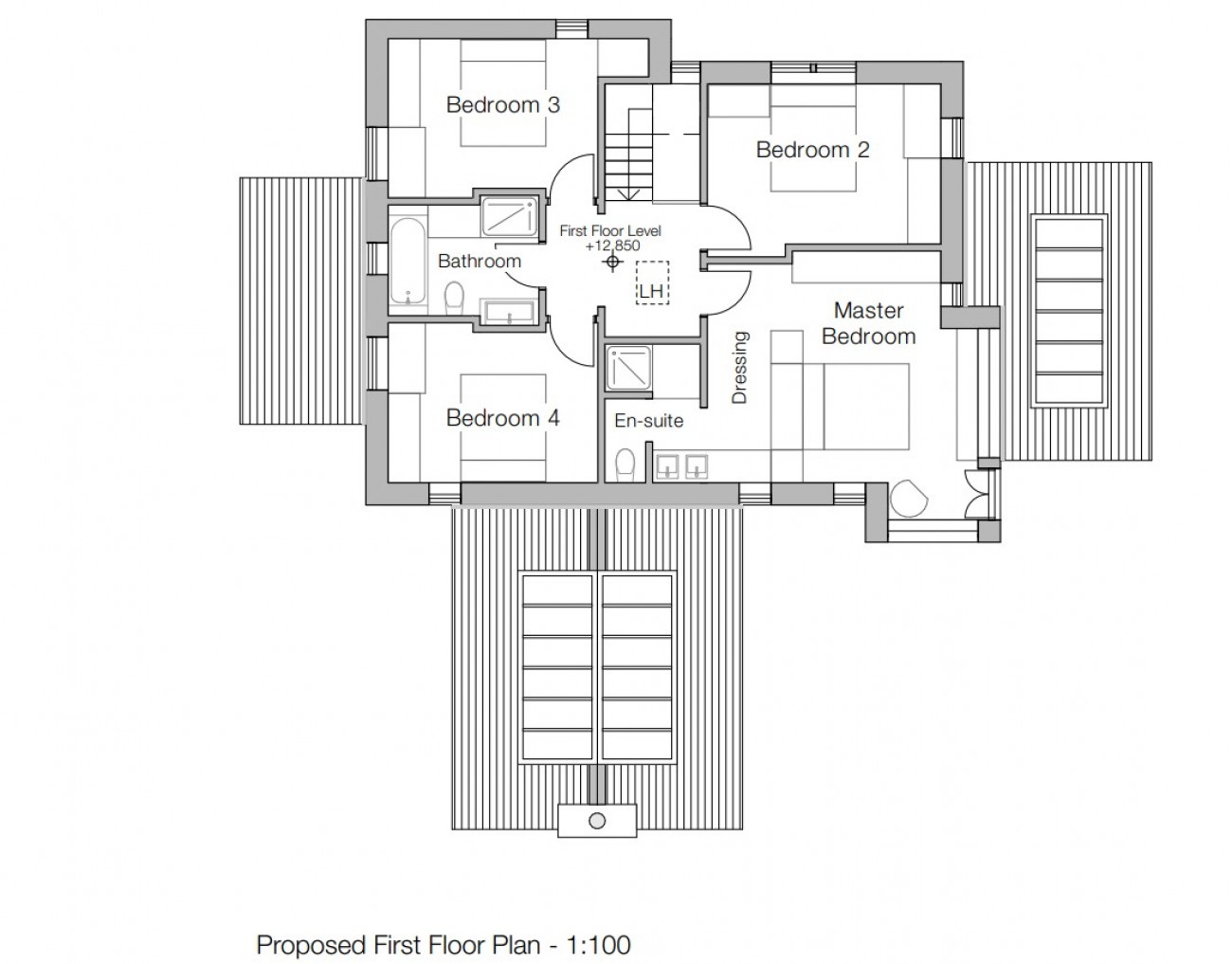
PP to develop a highly impressive bespoke house
Plans drawn by the renowned local architects One17
Existing two bedroom detached bungalow requires modernising
Local scenic walks on the doorstep
Local railway station connecting Huddersfield and Sheffield within walking distance
Walking distance of Honley high school
Much sought after local village of Honley with varied amenities and restaurants
Summary
Whether you're feeling really adventurous, or alternatively would like a less ambitious but all the same exciting project, then this development opportunity on the renowned Hall Ing Lane, might just where you belong.
Details
A rare opportunity to develop a property with existing planning permission.
You will surely be impressed with the investment our clients have made in the architectural drawings which offer two possible developments, courtesy of One17 design, Huddersfield's most renowned bespoke Architects.
One being to extend the existing stone bungalow, the other to create a bespoke executive luxury detached house.
The property stands in a total plot size of approximately 0.4 of an acre, with landscaped gardens, and mature plantings together with an extensive driveway.
Also available is our listing describing the bungalow as it is now: -
https://www.wherewebelong.co.uk/property-details/28675394/-/holmfirth/honley-3
To view the approved plans visit the Kirklees Planning Portal and imput references: -
Large detached - planning number : 2023/62/92984/W
Extended bungalow - planning number : 2025/62/91786/W
The property is sold as seen.
Viewing is highly recommended in order to appreciate the opportunity presented by this attractive stone property.
The essentials: Mains services are available. The property is Freehold. The house is not adapted for disabled living but offers fully ground floor living with a large hallway and could be easily adapted. There are a variety of broadband and mobile phone providers in the area. Council Tax Band is E. Only one property is allowed on the plot. Tree preservation orders are present.
Media Tours
Whether you're feeling really adventurous, or alternatively would like a less ambitious but all the same exciting project, then this development opportunity on the renowned Hall Ing Lane, might just where you belong.
A rare opportunity to develop a property with existing planning permission.
You will surely be impressed with the investment our clients have made in the architectural drawings which offer two possible developments, courtesy of One17 design, Huddersfield's most renowned bespoke Architects.
One being to extend the existing stone bungalow, the other to create a bespoke executive luxury detached house.
The property stands in a total plot size of approximately 0.4 of an acre, with landscaped gardens, and mature plantings together with an extensive driveway.
Also available is our listing describing the bungalow as it is now: -
https://www.wherewebelong.co.uk/property-details/28675394/-/holmfirth/honley-3
To view the approved plans visit the Kirklees Planning Portal and imput references: -
Large detached - planning number : 2023/62/92984/W
Extended bungalow - planning number : 2025/62/91786/W
The property is sold as seen.
Viewing is highly recommended in order to appreciate the opportunity presented by this attractive stone property.
The essentials: Mains services are available. The property is Freehold. The house is not adapted for disabled living but offers fully ground floor living with a large hallway and could be easily adapted. There are a variety of broadband and mobile phone providers in the area. Council Tax Band is E. Only one property is allowed on the plot. Tree preservation orders are present.
Location
Floorplan & EPC's
Key Information<
-
Tenure: Freehold
-
All Others: Ask Agent



