Key Features
Immediate ‘exchange of contracts’ available Being sold via ‘Secure Sale’
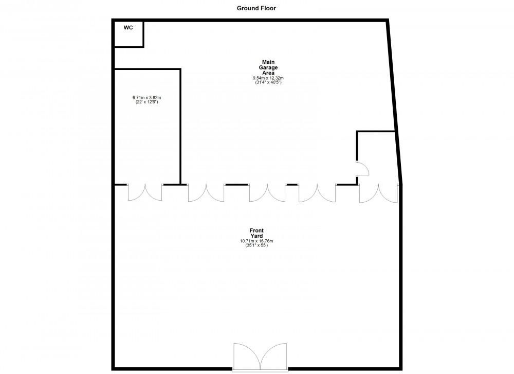
Commercial garage site
Large forecourt
Inspection pit
Enclosed area previously used for bodyshop work
Sectioned off WC area and Office area
Leasehold property on 2 titles - see legal pack
EPC rated G
Conditional Outline PP granted to build 3 townhouses
BUYERS FEES APPLY - PLEASE READ AUCTIONEERS COMMENTS
Summary
Immediate ‘exchange of contracts’ available.......... Being sold via ‘Secure Sale’. Starting Bid £145,000
Commercial Garage building and forecourt, not far from Huddersfield in the area of Paddock off the A62. Outline Panning Permission for 3 Town Houses on the site. Leasehold.
Details
Being sold via Secure Sale online bidding. Terms & Conditions apply. Starting Bid £145,000
This property will be legally prepared enabling any interested buyer to secure the property immediately once their bid/offer has been accepted. Ultimately a transparent process which provides speed, security and certainty for all parties.
A commercial property located in Paddock, and area which is accessible to the A62 Manchester/Huddersfield Road, approximately 2 miles from Huddersfield Centre.
A large garage building previously used for car repairs and bodyshop works.
The property has a large enclosed forecourt at the front with high fencing.
Conditional Outline Planning Permission has been granted to build 3 townhouses.
To view the application visit the Kirklees Planning portal and search for the application number 2025/60/92223/W
This is a leasehold property on two titles within the boundary - around 900 years left on each lease and ech ground rent being approximately £6.00 per annum.
Please refer to the legal pack for full details. Buyers are advised to speak with Kirklees Legal Department should they wish to pursue purchasing the Freehold to enable the development of the town houses.
VIEWINGS VIA OUR HONLEY OFFICE - MONDAY TO FRIDAY DURING WORKING HOURS ONLY
Mains electricity and water on site.
NOTE : ESSENTIAL AUCTIONEERS NOTES BELOW - PLEASE READ
Auctioneers Additional Comments
Pattinson Auction are working in Partnership with the marketing agent on this online auction sale and are referred to below as 'The Auctioneer'.
This auction lot is being sold either under conditional (Modern) or unconditional (Traditional) auction terms and overseen by the auctioneer in partnership with the marketing agent.
The property is available to be viewed strictly by appointment only via the Marketing Agent or The Auctioneer. Bids can be made via the Marketing Agents or via The Auctioneers website.
Please be aware that any enquiry, bid or viewing of the subject property will require your details being shared between both any marketing agent and The Auctioneer in order that all matters can be dealt with effectively.
The property is being sold via a transparent online auction.
In order to submit a bid upon any property being marketed by The Auctioneer, all bidders/buyers will be required to adhere to a verification of identity process in accordance with Anti Money Laundering procedures. Bids can be submitted at any time and from anywhere.
Our verification process is in place to ensure that AML procedure are carried out in accordance with the law.
The advertised price is commonly referred to as a ‘Starting Bid’ or ‘Guide Price’ and is accompanied by a ‘Reserve Price’. The ‘Reserve Price’ is confidential to the seller and the auctioneer and will typically be within a range above or below 10% of the ‘Guide Price’ / ‘Starting Bid’.
These prices are subject to change.
An auction can be closed at any time with the auctioneer permitting for the property (the lot) to be sold prior to the end of the auction.
A Legal Pack associated with this particular property is available to view upon request and contains details relevant to the legal documentation enabling all interested parties to make an informed decision prior to bidding. The Legal Pack will also outline the buyers’ obligations and sellers’ commitments. It is strongly advised that you seek the counsel of a solicitor prior to proceeding with any property and/or Land Title purchase.
Auctioneers Additional Comments
In order to secure the property and ensure commitment from the seller, upon exchange of contracts the successful bidder will be expected to pay a non-refundable deposit equivalent to 5% of the purchase price of the property. The deposit will be a contribution to the purchase price. A non-refundable reservation fee up to 6% inc VAT (subject to a minimum which could be up to £7,200 inc VAT) is also required to be paid upon agreement of sale. The Reservation Fee is in addition to the agreed purchase price and consideration should be made by the purchaser in relation to any Stamp Duty Land Tax liability associated with overall purchase costs.
Both the Marketing Agent and The Auctioneer may believe necessary or beneficial to the customer to pass their details to third party service suppliers, from which a referral fee may be obtained. There is no requirement or indeed obligation to use these recommended suppliers or services.
Immediate ‘exchange of contracts’ available.......... Being sold via ‘Secure Sale’. Starting Bid £145,000
Commercial Garage building and forecourt, not far from Huddersfield in the area of Paddock off the A62. Outline Panning Permission for 3 Town Houses on the site. Leasehold.
Being sold via Secure Sale online bidding. Terms & Conditions apply. Starting Bid £145,000
This property will be legally prepared enabling any interested buyer to secure the property immediately once their bid/offer has been accepted. Ultimately a transparent process which provides speed, security and certainty for all parties.
A commercial property located in Paddock, and area which is accessible to the A62 Manchester/Huddersfield Road, approximately 2 miles from Huddersfield Centre.
A large garage building previously used for car repairs and bodyshop works.
The property has a large enclosed forecourt at the front with high fencing.
Conditional Outline Planning Permission has been granted to build 3 townhouses.
To view the application visit the Kirklees Planning portal and search for the application number 2025/60/92223/W
This is a leasehold property on two titles within the boundary - around 900 years left on each lease and ech ground rent being approximately £6.00 per annum.
Please refer to the legal pack for full details. Buyers are advised to speak with Kirklees Legal Department should they wish to pursue purchasing the Freehold to enable the development of the town houses.
VIEWINGS VIA OUR HONLEY OFFICE - MONDAY TO FRIDAY DURING WORKING HOURS ONLY
Mains electricity and water on site.
NOTE : ESSENTIAL AUCTIONEERS NOTES BELOW - PLEASE READ
Auctioneers Additional Comments
Pattinson Auction are working in Partnership with the marketing agent on this online auction sale and are referred to below as 'The Auctioneer'.
This auction lot is being sold either under conditional (Modern) or unconditional (Traditional) auction terms and overseen by the auctioneer in partnership with the marketing agent.
The property is available to be viewed strictly by appointment only via the Marketing Agent or The Auctioneer. Bids can be made via the Marketing Agents or via The Auctioneers website.
Please be aware that any enquiry, bid or viewing of the subject property will require your details being shared between both any marketing agent and The Auctioneer in order that all matters can be dealt with effectively.
The property is being sold via a transparent online auction.
In order to submit a bid upon any property being marketed by The Auctioneer, all bidders/buyers will be required to adhere to a verification of identity process in accordance with Anti Money Laundering procedures. Bids can be submitted at any time and from anywhere.
Our verification process is in place to ensure that AML procedure are carried out in accordance with the law.
The advertised price is commonly referred to as a ‘Starting Bid’ or ‘Guide Price’ and is accompanied by a ‘Reserve Price’. The ‘Reserve Price’ is confidential to the seller and the auctioneer and will typically be within a range above or below 10% of the ‘Guide Price’ / ‘Starting Bid’.
These prices are subject to change.
An auction can be closed at any time with the auctioneer permitting for the property (the lot) to be sold prior to the end of the auction.
A Legal Pack associated with this particular property is available to view upon request and contains details relevant to the legal documentation enabling all interested parties to make an informed decision prior to bidding. The Legal Pack will also outline the buyers’ obligations and sellers’ commitments. It is strongly advised that you seek the counsel of a solicitor prior to proceeding with any property and/or Land Title purchase.
Auctioneers Additional Comments
In order to secure the property and ensure commitment from the seller, upon exchange of contracts the successful bidder will be expected to pay a non-refundable deposit equivalent to 5% of the purchase price of the property. The deposit will be a contribution to the purchase price. A non-refundable reservation fee up to 6% inc VAT (subject to a minimum which could be up to £7,200 inc VAT) is also required to be paid upon agreement of sale. The Reservation Fee is in addition to the agreed purchase price and consideration should be made by the purchaser in relation to any Stamp Duty Land Tax liability associated with overall purchase costs.
Both the Marketing Agent and The Auctioneer may believe necessary or beneficial to the customer to pass their details to third party service suppliers, from which a referral fee may be obtained. There is no requirement or indeed obligation to use these recommended suppliers or services.
Location
Floorplan & EPC's
Key Information<
-
Tenure: Leasehold
-
All Others: Ask Agent



