Key Features
An executive detached bungalow with four bedrooms and generous living space
Yorkshire Stone Paved Patios for alfresco dining
Sit a while in the BBQ Arctic Cabin, a space for relaxation and contemplation
Excellent garage with useful side room and utility
Well placed for Holmfirth Centre and for local schooling
Appointed to a lovely standard throughout
Views of the local area and beyond
Definitely one not to miss
View our 360° Virtual Reality Viewer and Video Tour on Belong's own website
Summary
It's not to often that bungalows of this nature come to the open market. In a much sought after cul-de-sac, backing onto local fields and with some delightful views, this 4 bedroom executive home offers spacious and easy to move into accommodation.
Details
Welcome to Grey Rigg; a genuinely delightful and welcoming home of quality in a much sought after locale just out of Holmfirth, backing onto local countryside.
In a large plot which in all is around 0.27 of an acre, with manicured gardens, which offer something for the garden enthusiast, little ones playing hide and seek, and for simply dining outdoors, the property has pathways, an abundance of Yorkshire Stone paving and seating areas providing access, and alfresco dining all around; established lawns and particularly well stocked flower and shrub beds with mature trees and plantings. A higher level patio takes full advantage of views of the garden and the hills in the distance.
Our clients are including in the sale the 10m BBQ Arctic Cabin, a delightful garden addition with seating and an indoor barbecue - perfect for relaxing in at any time of year. It has mood lighting too.
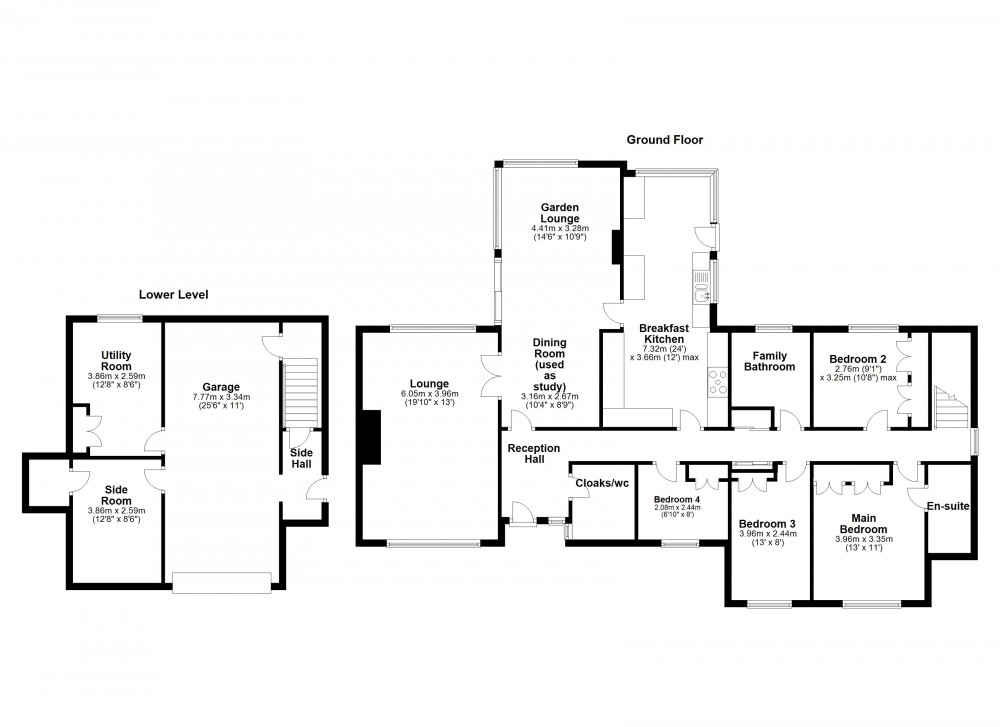
A driveway leads to an integral garage which is approximately 25' in length and has access to the main dwelling.
The lower level comprises of the garage which has a remote control door; a useful side entrance with storage, a side room which could be adapted for a variety of uses (hobby room or workshop for example), and also a spacious utility room.
The main accommodation is laid out on the ground floor and comprises:
A spacious and airy reception hall is the place to greet ones guests. Stand a while and enjoy the view from main entrance. There is a recently installed cloakroom/wc with a white suite and vanity units.
A door leads into the dining room which our clients presently use as a home office, and this in turn is open plan to the rear garden lounge/sitting room which has views onto the rear garden. An excellent space for entertaining guests, and especially at special times as one can accommodate the longest of dining tables. Patio doors lead out onto the garden from this delightful light and airy combined reception room.
Double doors lead into a luxurious lounge which boasts a wonderful media wall with down lighting, display plinths and a beautiful electric fire which has a variety of colour modes depending on one's mood. Large picture windows to the front and rear allow in lots of natural light and afford delightful outlooks.
The dining kitchen is both modern and spacious, styled and constructed by Denby Dale Kitchens. Fitted with an extensive range of attractive kitchen cabinets and beautiful worktops, a fitted Range Master double oven and induction hob with a cooker hood, a fitted Neff Microwave and a Bosch integrated dishwasher. A door leads out onto the rear patio areas, making this an excellent arrangement when dining outdoors.
There are four bedrooms in total.
Each of the bedrooms has fitted wardrobes providing ample storage.
All of the bathroom fittings are up to date and stylish.
The master bedroom has an attractive en-suite shower room with a generous walk-in shower, the family bathroom is a delight and is pristine, with a high quality white bathroom suite including a separate shower and well chosen tiling. Also, a spacious cloakroom/wc which has been re-fitted recently as mentioned previously.
The property has a gas central heating system, a combination of well maintained timber framed sealed unit and upvc double glazed windows, garden shed and greenhouse, and don't forget the 10m BBQ Arctic Cabin.
The 10m BBQ Alpine Cabin will effortlessly seat 15 people and create a cosy, intimate, fun environment for friends and family. Warm and snug in the winter and they offer welcome shade in the summer. Not just for barbecuing with specially adaptable benches they are great for sleepovers too, creating a teenage den, a unique guest room or a very impressive ‘man cave.’ It has a mains electric supply for lights and entertainment. 7 years manufacturers guarantee remaining.
The location is excellent. Being private at the rear with views over local fields, Crodingley is a much sought after cul-de-sac of individual homes.
Accessible and convenient, on the edge of local countryside and well placed for a variety of amenities as well as walks and scenery. Locally there are lots of places to eat out and socialise in Holmfirth, Honley and Netherthong.
There are tennis, bowling and cricket clubs nearby, as well as schooling for children of all ages. Business travellers will welcome the connectivity to West Yorkshire and Lancashire, as well as the local railway station in neighbouring Brockholes, that connects Huddersfield and Sheffield.
Viewing is essential to avoid disappointment.
The essentials: Mains services are available. The property is Freehold. Council Tax Band F. The property is not suited to disabled access/living. There are a variety of broadband and mobile phone providers in the area.
Viewing is strictly by appointment with our Honley office.
Media Tours
It's not to often that bungalows of this nature come to the open market. In a much sought after cul-de-sac, backing onto local fields and with some delightful views, this 4 bedroom executive home offers spacious and easy to move into accommodation.
Welcome to Grey Rigg; a genuinely delightful and welcoming home of quality in a much sought after locale just out of Holmfirth, backing onto local countryside.
In a large plot which in all is around 0.27 of an acre, with manicured gardens, which offer something for the garden enthusiast, little ones playing hide and seek, and for simply dining outdoors, the property has pathways, an abundance of Yorkshire Stone paving and seating areas providing access, and alfresco dining all around; established lawns and particularly well stocked flower and shrub beds with mature trees and plantings. A higher level patio takes full advantage of views of the garden and the hills in the distance.
Our clients are including in the sale the 10m BBQ Arctic Cabin, a delightful garden addition with seating and an indoor barbecue - perfect for relaxing in at any time of year. It has mood lighting too.
A driveway leads to an integral garage which is approximately 25' in length and has access to the main dwelling.
The lower level comprises of the garage which has a remote control door; a useful side entrance with storage, a side room which could be adapted for a variety of uses (hobby room or workshop for example), and also a spacious utility room.
The main accommodation is laid out on the ground floor and comprises:
A spacious and airy reception hall is the place to greet ones guests. Stand a while and enjoy the view from main entrance. There is a recently installed cloakroom/wc with a white suite and vanity units.
A door leads into the dining room which our clients presently use as a home office, and this in turn is open plan to the rear garden lounge/sitting room which has views onto the rear garden. An excellent space for entertaining guests, and especially at special times as one can accommodate the longest of dining tables. Patio doors lead out onto the garden from this delightful light and airy combined reception room.
Double doors lead into a luxurious lounge which boasts a wonderful media wall with down lighting, display plinths and a beautiful electric fire which has a variety of colour modes depending on one's mood. Large picture windows to the front and rear allow in lots of natural light and afford delightful outlooks.
The dining kitchen is both modern and spacious, styled and constructed by Denby Dale Kitchens. Fitted with an extensive range of attractive kitchen cabinets and beautiful worktops, a fitted Range Master double oven and induction hob with a cooker hood, a fitted Neff Microwave and a Bosch integrated dishwasher. A door leads out onto the rear patio areas, making this an excellent arrangement when dining outdoors.
There are four bedrooms in total.
Each of the bedrooms has fitted wardrobes providing ample storage.
All of the bathroom fittings are up to date and stylish.
The master bedroom has an attractive en-suite shower room with a generous walk-in shower, the family bathroom is a delight and is pristine, with a high quality white bathroom suite including a separate shower and well chosen tiling. Also, a spacious cloakroom/wc which has been re-fitted recently as mentioned previously.
The property has a gas central heating system, a combination of well maintained timber framed sealed unit and upvc double glazed windows, garden shed and greenhouse, and don't forget the 10m BBQ Arctic Cabin.
The 10m BBQ Alpine Cabin will effortlessly seat 15 people and create a cosy, intimate, fun environment for friends and family. Warm and snug in the winter and they offer welcome shade in the summer. Not just for barbecuing with specially adaptable benches they are great for sleepovers too, creating a teenage den, a unique guest room or a very impressive ‘man cave.’ It has a mains electric supply for lights and entertainment. 7 years manufacturers guarantee remaining.
The location is excellent. Being private at the rear with views over local fields, Crodingley is a much sought after cul-de-sac of individual homes.
Accessible and convenient, on the edge of local countryside and well placed for a variety of amenities as well as walks and scenery. Locally there are lots of places to eat out and socialise in Holmfirth, Honley and Netherthong.
There are tennis, bowling and cricket clubs nearby, as well as schooling for children of all ages. Business travellers will welcome the connectivity to West Yorkshire and Lancashire, as well as the local railway station in neighbouring Brockholes, that connects Huddersfield and Sheffield.
Viewing is essential to avoid disappointment.
The essentials: Mains services are available. The property is Freehold. Council Tax Band F. The property is not suited to disabled access/living. There are a variety of broadband and mobile phone providers in the area.
Viewing is strictly by appointment with our Honley office.
Location
Floorplan & EPC's
Key Information<
-
Tenure: Freehold
-
Council Tax Band: F
-
Electricity: MainsSupply
-
Mains Water: MainsSupply
-
Sewerage: MainsSupply
-
Heating: GasCentral
-
Garage: Yes
-
Parking Spaces: 2
-
Garden: Yes
-
All Others: Ask Agent



