Key Features
Superbly appointed executive detached house
Popular semi rural village above Holmfirth
Local country walks and scenery
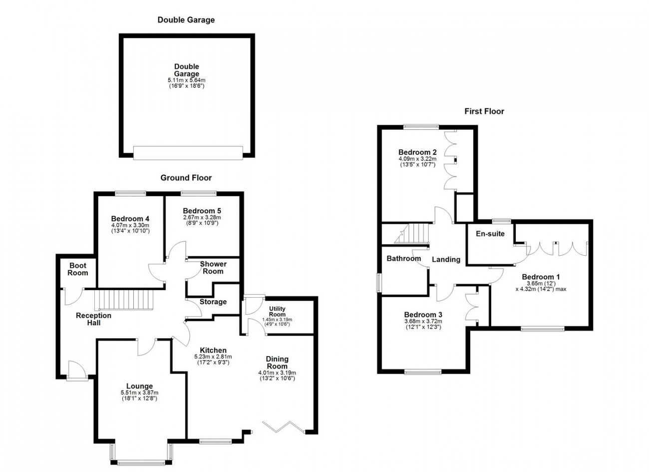
Five bedrooms, en-suite shower room, family bathroom and wetroom
Beautiful open plan living dining kitchen with bi-fold doors to the front deck
Views over Netherthong and beyond to the front
Backing onto local trees and fields
Impressive double garage with remote control garage door
Must be viewed to be fully appreciated
View our 3D Virtual Reality Tour and Video on Belong's own website
Summary
Arguably one of the finest homes of its type in the Holme Valley. Appointed to an exacting standard, this superbly designed, spacious family home is located in one of the valleys most sought after villages.
Details
Occupying a lovely elevated position, not overlooked from the rear, and enjoying a delightful view, this most impressive and appealing executive detached house is certainly worthy of a personal inspection.
If you are in the market for a "turn-key" property on the edge of local countryside, not far from Holmfirth, then this might be where you belong.
Out clients have invested heavily in the property to create something very special. It comes complete with a double garage too.
Occupying a head of cul-de-sac position in Netherthong, a village which is very sought after due to its excellent primary school, local scenic walks, and beautiful church. Netherthong has a local convenience store, excellent road links, and places to eat out and socialise. It has an excellent local community and is mostly made up of detached homes and cottages. A perfect locale for families and business travellers.
The house itself is a delight. Comfortable, modern, stylish and ready to move into. You won't be disappointed with what's in store at a viewing. The accommodation briefly comprises:-
Fabulous reception hall - perfect for greeting ones guests. It has a striking glazed staircase, an excellent boot room, and an additional walk-in store room/pantry.
The lounge is a generous size and offers a pleasant view through the large picture window at the front, and there is a media area with low level tv cabinets.
Wander into the kitchen and you will not be disappointed. Open plan to the dining room and fitted with an excellent range of stylish kitchen cabinets, complemented by contemporary Corian worktops and appliances to include a dishwasher, range oven and cooker hood. This combined living dining kitchen is what many aspire to have these days, a room for interactive family life and perfect for entertaining guests. Open the bi-fold doors and enjoy a spot of alfresco dining on the front decking with views beyond.
In addition, there is a useful utility room which provides access to the rear patio and barbecue area, adjacent to which is a useful garden store measuring 5'6 x 11'5.
Two double good double bedrooms and a superbly finished shower room complete the ground floor accommodation. (One of the bedrooms is presently used as a second sitting room and the other a home office).
On reaching the top of the wonderful staircase you will find a spacious main bedroom which is fitted with a range of wardrobes, and comes complete with a stylish en-suite shower room as depicted in our images. Note the view from the front of the property.
There are two more spacious double bedrooms on the first floor each with fitted wardrobes, and a good sized modern fitted family bathroom with stylish fittings and well chosen tiling. The front bedroom looks across the Holme Valley and the rear bedroom looks onto the garden.
Externally, the property stands in a generous plot backing onto local trees and fields. The gardens are well kept with mature plantings, a front lawn and places to dine outdoors to both elevations, making them ideal for those who enjoy home entertaining. The double garage has a remote control garage door and has power and light laid on.
In all, this is an outstanding home which will suit both families and professionals, in a sought after semi-rural village.
Viewing is strictly by appointment with our Honley office.
The essentials: The property is Freehold. Mains services are available. The house is not suited to wheelchair users. There are various broadband and mobile phone providers in the area. Council Tax Band is E. Parking is in the double garage and roadside. The property has a gas central heating system and double glazing. Trees with TPO's to rear. Our clients will complete some outstanding rendering works prior to completion.
Media Tours
Arguably one of the finest homes of its type in the Holme Valley. Appointed to an exacting standard, this superbly designed, spacious family home is located in one of the valleys most sought after villages.
Occupying a lovely elevated position, not overlooked from the rear, and enjoying a delightful view, this most impressive and appealing executive detached house is certainly worthy of a personal inspection.
If you are in the market for a "turn-key" property on the edge of local countryside, not far from Holmfirth, then this might be where you belong.
Out clients have invested heavily in the property to create something very special. It comes complete with a double garage too.
Occupying a head of cul-de-sac position in Netherthong, a village which is very sought after due to its excellent primary school, local scenic walks, and beautiful church. Netherthong has a local convenience store, excellent road links, and places to eat out and socialise. It has an excellent local community and is mostly made up of detached homes and cottages. A perfect locale for families and business travellers.
The house itself is a delight. Comfortable, modern, stylish and ready to move into. You won't be disappointed with what's in store at a viewing. The accommodation briefly comprises:-
Fabulous reception hall - perfect for greeting ones guests. It has a striking glazed staircase, an excellent boot room, and an additional walk-in store room/pantry.
The lounge is a generous size and offers a pleasant view through the large picture window at the front, and there is a media area with low level tv cabinets.
Wander into the kitchen and you will not be disappointed. Open plan to the dining room and fitted with an excellent range of stylish kitchen cabinets, complemented by contemporary Corian worktops and appliances to include a dishwasher, range oven and cooker hood. This combined living dining kitchen is what many aspire to have these days, a room for interactive family life and perfect for entertaining guests. Open the bi-fold doors and enjoy a spot of alfresco dining on the front decking with views beyond.
In addition, there is a useful utility room which provides access to the rear patio and barbecue area, adjacent to which is a useful garden store measuring 5'6 x 11'5.
Two double good double bedrooms and a superbly finished shower room complete the ground floor accommodation. (One of the bedrooms is presently used as a second sitting room and the other a home office).
On reaching the top of the wonderful staircase you will find a spacious main bedroom which is fitted with a range of wardrobes, and comes complete with a stylish en-suite shower room as depicted in our images. Note the view from the front of the property.
There are two more spacious double bedrooms on the first floor each with fitted wardrobes, and a good sized modern fitted family bathroom with stylish fittings and well chosen tiling. The front bedroom looks across the Holme Valley and the rear bedroom looks onto the garden.
Externally, the property stands in a generous plot backing onto local trees and fields. The gardens are well kept with mature plantings, a front lawn and places to dine outdoors to both elevations, making them ideal for those who enjoy home entertaining. The double garage has a remote control garage door and has power and light laid on.
In all, this is an outstanding home which will suit both families and professionals, in a sought after semi-rural village.
Viewing is strictly by appointment with our Honley office.
The essentials: The property is Freehold. Mains services are available. The house is not suited to wheelchair users. There are various broadband and mobile phone providers in the area. Council Tax Band is E. Parking is in the double garage and roadside. The property has a gas central heating system and double glazing. Trees with TPO's to rear. Our clients will complete some outstanding rendering works prior to completion.
Location
Floorplan & EPC's
Key Information<
-
Tenure: Freehold
-
Council Tax Band: E
-
Electricity: MainsSupply
-
Mains Water: MainsSupply
-
Sewerage: MainsSupply
-
Heating: GasCentral
-
Garden: Yes
-
All Others: Ask Agent



