Key Features
Beautiful two bedroom end stone mews
Delightful garden - perfect for alfresco dining
Lovely lounge with feature fireplace
Impressive modern dining kitchen with bi-fold doors to the rear patio
Two bedrooms and a stylish modern white bathroom
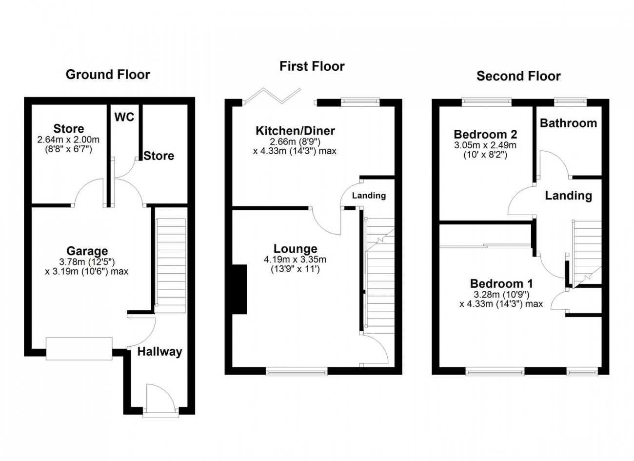
Garage for a small vehicle or storage, with additional useful store rooms and w.c.
Particularly popular semi rural village with lovely local walks
Places to eat out and socialise
Excellent primary school on the doorstep
View our 360° Virtual Reality Viewer and Video Tour on Belong's own website
Summary
If you are in the market for a truly delightful two bedroom stone property with a modern personality and delightful garden, then this genuinely comfortable end mews house is where you might belong.
Details
Every once in a while a lovely home comes to the market which is just the perfect fit.
If you are seeking a comfortable and cared for two bedroom stone built house in the Holme Valley, in a desirable village with local country walks, scenery and places to eat out and socialise, then this property on Dean Brook Road might just be the one for you.
It has had replacement windows, a beautiful fitted kitchen and a stylish bathroom too.
The lounge is a delight. It has a focal point fireplace and has a view through to the kitchen and garden beyond.
Both bedrooms are double bedrooms and the bathroom is bright and white with well chosen tiling and a shower over the bath.
The kitchen is fitted with stylish units and integrated cooking appliances, fridge, and dishwasher and has bi-fold doors leading out onto the rear garden, which makes it perfect for alfresco dining on sunny summer afternoons.
The garden has an abundance of flower beds, interesting planting, and mature shrubs, providing privacy for the various places to entertain and relax. There is also a higher level garden area which offers two large raised growing beds, and a lovely vantage point of the property with views beyond.
A driveway at the front offers off road parking and there is a small garden frontage too.
As you enter the property there are stairs to the first floor, and a door through to the garage which is ideal for bikes, motorbike, or a small car. Partitioned to offer two rear store rooms, one plumbed for laundry with a ground floor w.c. The garage and store configuration provides a practical environment.
Netherthong has places to eat out and soclialise, an excellent local primary school, beautiful local church, local countryside and scenic walks, and excellent road links for business travellers. Holmfirth is a few minutes away by car, as is Brockholes railway station which links to Huddersfield and Sheffield.
In all, this is a really lovely two bedroom house in a popular village within the Holme Valley, and a personal viewing is highly reccommended.
The essentials: The property is Freehold. The house is in a conservation area. Mains services are available. The house has double glazing and a gas central heating system. Council Tax Band is C. The house is not suited to disabled access. There are a variety of broadband and mobile phone providers in the area. Please see title images for the boundary and extra upper garden.
Viewing is strictly by appointment with our Honley office.
Media Tours
If you are in the market for a truly delightful two bedroom stone property with a modern personality and delightful garden, then this genuinely comfortable end mews house is where you might belong.
Every once in a while a lovely home comes to the market which is just the perfect fit.
If you are seeking a comfortable and cared for two bedroom stone built house in the Holme Valley, in a desirable village with local country walks, scenery and places to eat out and socialise, then this property on Dean Brook Road might just be the one for you.
It has had replacement windows, a beautiful fitted kitchen and a stylish bathroom too.
The lounge is a delight. It has a focal point fireplace and has a view through to the kitchen and garden beyond.
Both bedrooms are double bedrooms and the bathroom is bright and white with well chosen tiling and a shower over the bath.
The kitchen is fitted with stylish units and integrated cooking appliances, fridge, and dishwasher and has bi-fold doors leading out onto the rear garden, which makes it perfect for alfresco dining on sunny summer afternoons.
The garden has an abundance of flower beds, interesting planting, and mature shrubs, providing privacy for the various places to entertain and relax. There is also a higher level garden area which offers two large raised growing beds, and a lovely vantage point of the property with views beyond.
A driveway at the front offers off road parking and there is a small garden frontage too.
As you enter the property there are stairs to the first floor, and a door through to the garage which is ideal for bikes, motorbike, or a small car. Partitioned to offer two rear store rooms, one plumbed for laundry with a ground floor w.c. The garage and store configuration provides a practical environment.
Netherthong has places to eat out and soclialise, an excellent local primary school, beautiful local church, local countryside and scenic walks, and excellent road links for business travellers. Holmfirth is a few minutes away by car, as is Brockholes railway station which links to Huddersfield and Sheffield.
In all, this is a really lovely two bedroom house in a popular village within the Holme Valley, and a personal viewing is highly reccommended.
The essentials: The property is Freehold. The house is in a conservation area. Mains services are available. The house has double glazing and a gas central heating system. Council Tax Band is C. The house is not suited to disabled access. There are a variety of broadband and mobile phone providers in the area. Please see title images for the boundary and extra upper garden.
Viewing is strictly by appointment with our Honley office.
Location
Floorplan & EPC's
Key Information<
-
Tenure: Freehold
-
Council Tax Band: C
-
Electricity: MainsSupply
-
Mains Water: MainsSupply
-
Sewerage: MainsSupply
-
Heating: GasCentral
-
Parking Spaces: 1
-
Garden: Yes
-
All Others: Ask Agent



