Key Features
3 bedroom period terraced house
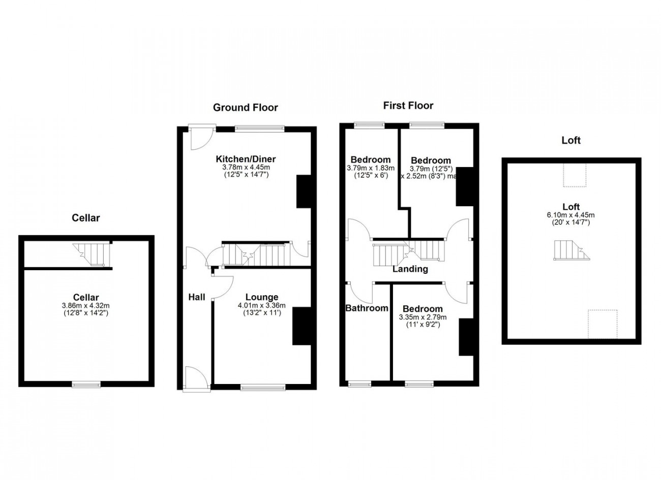
Large loft providing useful additional space
Lounge with open fire
Good sized dining kitchen opening onto the rear garden
Cellar providing addtional storage
Traditional style bathroom with roll top bath and well chosen tiling
Gas central heating system
Double glazing
Popular and convenient Colne Valley location
View our 360° Virtual Reality Viewer and Video Tour on Belong's own website
Summary
If you are in the market for a roomy 3 bedroom plus loft mid-through terraced house in an elevated position with views down the Colne Valley, then this might be where you belong.
Details
Enjoying views down the Colne Valley at the front and not being overlooked from the rear, this traditional stone fronted terraced house displays character and individual charm.
Offering well proportioned accommodation with three bedrooms on the first floor and with a useful large loft space, the house also provides ample storage as it includes a cellar.
There is a more contemporary styled kitchen which opens onto the rear garden which is suited to barbecues etc.
The bathroom is modern but period in style, with a roll top bath and over-bath shower, with period themed tiling.
The lounge is at the front of the property and enjoys an open fire. As with all of the rooms at the front, there is a pleasant view between the trees, down the Colne Valley.
Longwood is a popular area, as there are some attractive local walks and scenery - wander up to Longwood Tower - the home of Longwood Sing and take in the fresh air and views. There is good access to Huddersfield Centre by car and also to the M62 motorway network, making this an ideal base for business travellers.
Amenities are available in neighbouring villages, and the property is on a bus route too.
The house has a gas central heating system, and double glazing (not cellar).
In all, this is a property which will appeal to both families and professionals, and a personal viewing is highly recommended to appreciate the house on offer.
The essentials: Mains services are available. The property is Freehold. Parking is on-road. Council Tax Band is B. There are a variety of mobile phone and broadband providers in the area. The house is not suited to those with disability access requirements.
Media Tours
If you are in the market for a roomy 3 bedroom plus loft mid-through terraced house in an elevated position with views down the Colne Valley, then this might be where you belong.
Enjoying views down the Colne Valley at the front and not being overlooked from the rear, this traditional stone fronted terraced house displays character and individual charm.
Offering well proportioned accommodation with three bedrooms on the first floor and with a useful large loft space, the house also provides ample storage as it includes a cellar.
There is a more contemporary styled kitchen which opens onto the rear garden which is suited to barbecues etc.
The bathroom is modern but period in style, with a roll top bath and over-bath shower, with period themed tiling.
The lounge is at the front of the property and enjoys an open fire. As with all of the rooms at the front, there is a pleasant view between the trees, down the Colne Valley.
Longwood is a popular area, as there are some attractive local walks and scenery - wander up to Longwood Tower - the home of Longwood Sing and take in the fresh air and views. There is good access to Huddersfield Centre by car and also to the M62 motorway network, making this an ideal base for business travellers.
Amenities are available in neighbouring villages, and the property is on a bus route too.
The house has a gas central heating system, and double glazing (not cellar).
In all, this is a property which will appeal to both families and professionals, and a personal viewing is highly recommended to appreciate the house on offer.
The essentials: Mains services are available. The property is Freehold. Parking is on-road. Council Tax Band is B. There are a variety of mobile phone and broadband providers in the area. The house is not suited to those with disability access requirements.
Location
Floorplan & EPC's



