Key Features
Detached chalet bungalow
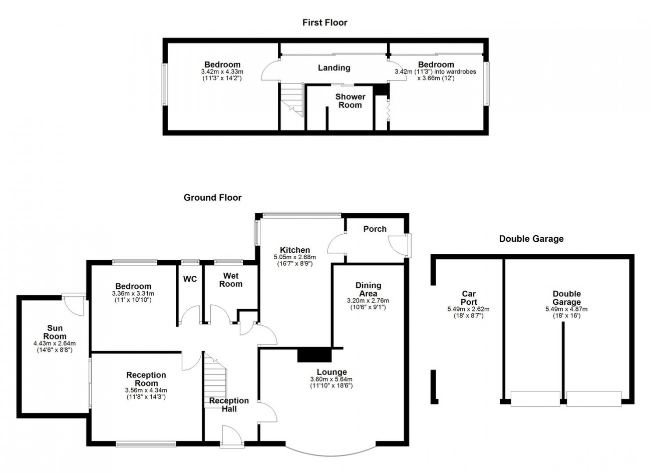
Bedrooms on the first floor and ground floor
Shower rooms on both levels
L shaped lounge diner. Kitchen with rear porch overlooking the garden
Second ground floor reception plus side sun porch/conservatory
Ground floor rear bedroom
Accommodation to be modernised and scope for reconfiguration
Generous corner plot with mature grounds, parking and garaging
View our 360° Virtual Reality Viewer and Video Tour on Belong's own website
Summary
At the head of a popular and rarely available cul-de-sac of similar properties, this detached chalet bungalow stands in a generous plot with ample parking and a double garage. For modernisation.
Details
A spacious detached chalet bungalow in a little known yet highly regarded cul-de-sac which backs onto local woodland and Longley Park Golf Course.
Well positioned at the head of the cul-de-sac, the property stands in a generous plot with mature gardens as depicted in our images and video tour.
Huddersfield Centre is a few minutes drive by car and there are local bus services available too.
A quiet cul-de-sac, mostly of bungalows, Russett Grove has always been popular with those retiring and families too.
The property requires a programme of modernisation and offers the opportunity for reconfiguration too as there are a variety of reception rooms and bedrooms.
At the front of the house is a lawned garden with a side driveway providing off road parking, which leads to a detached double garage and side car port.
At the rear of the property is a good sized garden with a lawn and mature plantings, a garden that is certainly large enough to enjoy the sunshine at various times of day. Garden enthusiasts will relish the challenge of establishing something special once more.
Enter the property into a generous reception hall, which leads to a spacious front lounge. A dining area sits behind the lounge.
The kitchen is of a good size and opens into a rear porch area overlooking the rear garden.
There is a second reception room to the front of the property which leads to an older style conservatory/sun room. This could be reconfigured to be a ground floor bedroom. In addition there is a ground floor bedroom to the left rear of the property, as well as a separate w.c. and wetroom.
In the first floor there are two double bedrooms and a shower room/wc.
Explore our 3D tour and watch our video to further understand the layout in conjunction with the floor plan in these particulars.
The property offers an excellent opportunity to establish a spacious and comfortable home, with imagination and investment, and a personal viewing is highly recommended.
The essentials: The property is Leasehold on a 999 Year Lease from 1972 at a ground rent of £22.00 per annum. Mains services are available. The property has a gas central heating system and double glazing. Council Tax band is E. There are a variety of mobile phone and broadband providers in the area.
Offered with vacant possession and no onward chain.
Please note: This property is being sold subject to the grant of probate. A buyer may have to be patient, should the conveyancing progress more quickly than the receipt of the grant of probate.
Media Tours
At the head of a popular and rarely available cul-de-sac of similar properties, this detached chalet bungalow stands in a generous plot with ample parking and a double garage. For modernisation.
A spacious detached chalet bungalow in a little known yet highly regarded cul-de-sac which backs onto local woodland and Longley Park Golf Course.
Well positioned at the head of the cul-de-sac, the property stands in a generous plot with mature gardens as depicted in our images and video tour.
Huddersfield Centre is a few minutes drive by car and there are local bus services available too.
A quiet cul-de-sac, mostly of bungalows, Russett Grove has always been popular with those retiring and families too.
The property requires a programme of modernisation and offers the opportunity for reconfiguration too as there are a variety of reception rooms and bedrooms.
At the front of the house is a lawned garden with a side driveway providing off road parking, which leads to a detached double garage and side car port.
At the rear of the property is a good sized garden with a lawn and mature plantings, a garden that is certainly large enough to enjoy the sunshine at various times of day. Garden enthusiasts will relish the challenge of establishing something special once more.
Enter the property into a generous reception hall, which leads to a spacious front lounge. A dining area sits behind the lounge.
The kitchen is of a good size and opens into a rear porch area overlooking the rear garden.
There is a second reception room to the front of the property which leads to an older style conservatory/sun room. This could be reconfigured to be a ground floor bedroom. In addition there is a ground floor bedroom to the left rear of the property, as well as a separate w.c. and wetroom.
In the first floor there are two double bedrooms and a shower room/wc.
Explore our 3D tour and watch our video to further understand the layout in conjunction with the floor plan in these particulars.
The property offers an excellent opportunity to establish a spacious and comfortable home, with imagination and investment, and a personal viewing is highly recommended.
The essentials: The property is Leasehold on a 999 Year Lease from 1972 at a ground rent of £22.00 per annum. Mains services are available. The property has a gas central heating system and double glazing. Council Tax band is E. There are a variety of mobile phone and broadband providers in the area.
Offered with vacant possession and no onward chain.
Please note: This property is being sold subject to the grant of probate. A buyer may have to be patient, should the conveyancing progress more quickly than the receipt of the grant of probate.
Location
Floorplan & EPC's
Key Information<
-
Tenure: Leasehold
-
Council Tax Band: E
-
Annual Ground Rent: £22
-
Electricity: MainsSupply
-
Mains Water: MainsSupply
-
Sewerage: MainsSupply
-
Garage: Unspecified
-
Parking Spaces: 4
-
Garden: Yes
-
All Others: Ask Agent



