Key Features
Stone built detached house in a little know position
Conveniently situated, just out of the village
Long sweeping driveway, to a generous parking and large garage
Lawned garden to the front, also a large chicken run beneath mature trees
Three bedrooms, bathroom and ground floor shower room
Two reception rooms, reception hall, inner lobby & sun room
Spacious dining kitchen
Offered with vacant possession and no onward chain
Gas central heating system, and double glazing
View our 360° Virtual Reality Viewer and Video Tour on Belong's own website
Summary
Pull into the long driveway at this detached property in Meltham, and you’ll realise you never knew this house was there.
Details
Tucked away with in a generous plot with a sweeping driveway lots of off road parking, a large garage, lawn, patio and chicken run, this three bedroom stone built detached house is sure to surprise.
Not far from the varied amenities on hand in Meltham, as well as the Peak District National Park, the property is offered with vacant possession and no onward chain.
Take our 3D tour, view our video and floorplans to gain an understanding of the house, and book a personal viewing.
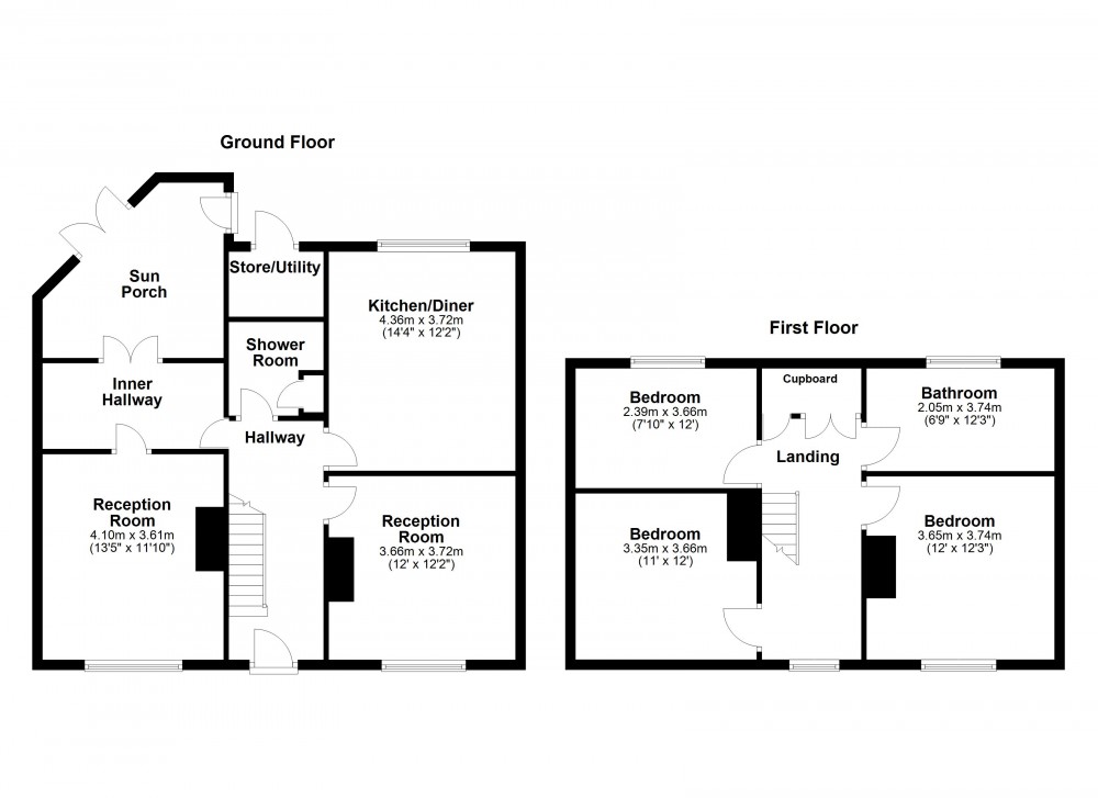
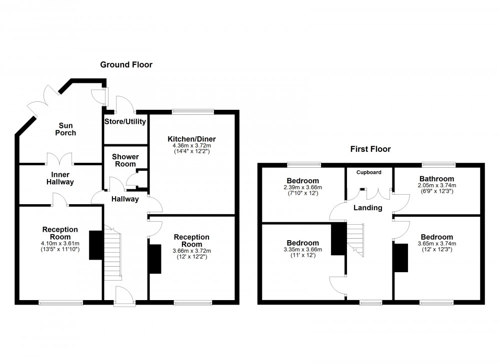
The property comprises:
Ground Floor:
Reception Hall, Lounge with solid fuel fire, spacious dining kitchen, shower room/w.c, inner lobby, second sitting room and also a conservatory to the rear.
First Floor:
Landing, three good bedrooms and a bathroom/w.c.
The house has a gas central heating system and double glazing.
Meltham has a vibrant village centre with various independent shops and businesses, as well as a supermarket and petrol station, public services and schooling for younger children. The school bus to Honley High School is convenient for families with older children too.
Business travellers welcome the road links to North East Manchester and there are trans-Pennine railway stations in the neighbouring villages of Marsden and Slaithwaite.
Meltham has some dramatic local countryside and is an excellent base for those who enjoy the outdoors
In all, this is an individual property in a popular semi rural village and viewing is highly recommended.
The essentials: The property is Freehold. There are trees with TPO’s. Mains services are available. There are a variety of broadband and mobile phone providers in the area. The house is not adapted for disabled living. Council Tax Band is to be confirmed by Kirklees Council.
EPC to follow.
Media Tours
Pull into the long driveway at this detached property in Meltham, and you’ll realise you never knew this house was there.
Tucked away with in a generous plot with a sweeping driveway lots of off road parking, a large garage, lawn, patio and chicken run, this three bedroom stone built detached house is sure to surprise.
Not far from the varied amenities on hand in Meltham, as well as the Peak District National Park, the property is offered with vacant possession and no onward chain.
Take our 3D tour, view our video and floorplans to gain an understanding of the house, and book a personal viewing.
The property comprises:
Ground Floor:
Reception Hall, Lounge with solid fuel fire, spacious dining kitchen, shower room/w.c, inner lobby, second sitting room and also a conservatory to the rear.
First Floor:
Landing, three good bedrooms and a bathroom/w.c.
The house has a gas central heating system and double glazing.
Meltham has a vibrant village centre with various independent shops and businesses, as well as a supermarket and petrol station, public services and schooling for younger children. The school bus to Honley High School is convenient for families with older children too.
Business travellers welcome the road links to North East Manchester and there are trans-Pennine railway stations in the neighbouring villages of Marsden and Slaithwaite.
Meltham has some dramatic local countryside and is an excellent base for those who enjoy the outdoors
In all, this is an individual property in a popular semi rural village and viewing is highly recommended.
The essentials: The property is Freehold. There are trees with TPO’s. Mains services are available. There are a variety of broadband and mobile phone providers in the area. The house is not adapted for disabled living. Council Tax Band is to be confirmed by Kirklees Council.
EPC to follow.
Location
Floorplan & EPC's

Key Information<
-
Tenure: Freehold
-
Council Tax Band: E
-
Electricity: MainsSupply
-
Mains Water: MainsSupply
-
Sewerage: MainsSupply
-
Heating: GasCentral
-
Garage: Yes
-
Parking Spaces: 5
-
Garden: Yes
-
All Others: Ask Agent